СП 35-105-2002: Реконструкция городской застройки с учетом доступности для инвалидов и других маломобильных групп населения

СП 35-105-2002

Скачать Действующий Печать
Все видео
Дата введения в действие: 20.12.2001 Статус на 29.04.2026: Действующий

СП 35-105-2002 Реконструкция городской застройки с учетом доступности для инвалидов и других маломобильных групп населения

СП 35-105-2002

СВОД ПРАВИЛ ПО ПРОЕКТИРОВАНИЮ И СТРОИТЕЛЬСТВУ

РЕКОНСТРУКЦИЯ ГОРОДСКОЙ ЗАСТРОЙКИ С УЧЕТОМ ДОСТУПНОСТИ ДЛЯ ИНВАЛИДОВ И ДРУГИХ МАЛОМОБИЛЬНЫХ ГРУПП НАСЕЛЕНИЯ

Reconstruction of urban built-up environment with due regard to the accessibility for invalids and other not mobile groups of population

Предисловие

  1. РАЗРАБОТАН Государственным Центральным научно-исследовательским и проектным институтом по градостроительству (ЦНИИП градостроительства) Российской академии архитектуры и строительных наук - ведущая организация, ГУП "Научно-проектный институт учебно-воспитательных, торгово-бытовых и досуговых зданий" ("Институт общественных зданий") Госстроя России.
  2. ВНЕСЕН Министерством труда и социального развития Российской Федерации.
  3. ПРЕДСТАВЛЕН Управлением архитектуры и проектных работ, Управлением градостроительства, землепользования и территориального развития, Управлением стандартизации, технического нормирования и сертификации Госстроя России.
  4. УТВЕРЖДЕН приказом директора ЦНИИП градостроительства от 20 декабря 2001 г. N 256-а.
  5. ОДОБРЕН И РЕКОМЕНДОВАН к применению в качестве нормативного документа Системы нормативных документов в строительстве постановлением Госстроя России от 19 июля 2002 г. N 89.
  6. ВВЕДЕН впервые.

Введение

Настоящий Свод правил подготовлен в соответствии с Федеральным законом "О социальной защите инвалидов в Российской Федерации" от 24 ноября 1995 г. N 181-ФЗ (Собрание законодательства Российской Федерации, 1995 г., N 48, ст.4563) и федеральной целевой программой "Социальная поддержка инвалидов на 2000-2005 годы"1), п.15 по Государственному контракту N 20/1 от 5 сентября 2001 г. с Министерством труда и социального развития Российской Федерации.

1) На территории Российской Федерации документ не действует. Фактически утратил силу в связи с истечением срока действия 31.12.2005 г.

Свод правил разработан в целях выполнения требований Градостроительного кодекса Российской Федерации и в развитие требований СНиП 2.07.01-89* "Градостроительство. Планировка и застройка городских и сельских поселений", а также основных положений СНиП 35-01-2001 "Доступность зданий и сооружений для маломобильных групп населения", относящихся к созданию удобной для инвалидов городской среды при передвижении от мест проживания к общественным зданиям различного назначения, местам труда, отдыха и др.

Действующим законодательством, постановлениями Правительства Российской Федерации, социальными программами государство предусматривает формирование для лиц с ограниченными физическими возможностями доступной среды жизнедеятельности в городах при реконструкции существующей застройки, зданий, сооружений и их комплексов. Создаются равные с другими гражданами условия для полноценного участия в жизни общества лиц, имеющих стойкие расстройства функций организма, обусловленные заболеваниями, последствиями травм или иными расстройствами здоровья, - инвалидов с поражением опорно-двигательного аппарата, недостатками зрения и дефектами слуха, а также других категорий инвалидов и маломобильных групп населения.

Согласно ст.15 Федерального закона от 24 ноября 1995 г. N 181-ФЗ "О социальной защите инвалидов в Российской Федерации": "Планировка и застройка городов, других населенных пунктов, формирование жилых и рекреационных зон, разработка проектных решений на новое строительство и реконструкцию зданий, сооружений и их комплексов, а также разработка и производство транспортных средств общего пользования, средств связи и информации без приспособления указанных объектов для доступа к ним инвалидов и использования их инвалидами не допускается".

Специальные мероприятия по созданию доступной городской среды для инвалидов создают дополнительные удобства для всех категорий населения: беременных женщин, матерей с прогулочными колясками, людей старшего возраста с любой функциональной недостаточностью и др.

Проектно-организационные мероприятия по созданию доступности для инвалидов городской среды направлены на улучшение условий проживания, обслуживания, досуга, трудовой деятельности инвалидов всех категорий, на обеспечение возможности для их свободного доступа к объектам социальной инфраструктуры. Приоритетом при разработке программ адаптации городской среды является доступ инвалидов к объектам социальной инфраструктуры. В числе первоочередных следует считать жилые и общественные здания, места отдыха, спортивные сооружения, культурно-зрелищные и другие учреждения, а также беспрепятственное пользование общественным транспортом и транспортными коммуникациями, средствами связи и информации.

Свод правил СП 35-105-2002 содержит обязательные правила и рекомендуемые положения в развитие требований СНиП 35-01-2001 и является документом федерального уровня.

В данном документе учтен отечественный и зарубежный опыт создания безбарьерной удобной для инвалидов среды в городе при реконструкции существующей застройки, зданий и сооружений и их комплексов, а также изменения и дополнения в блоке нормативно-методических документов в строительстве, направленные на обеспечение условий доступности для инвалидов и других маломобильных групп населения.

Свод правил СП 35-105-2002 разработан авторским коллективом:

ЦНИИП градостроительства РААСН (научный руководитель работы - канд. архит. П.Н.Давиденко, ответственный исполнитель - канд. техн. наук З.В.Азаренкова), ГУП "Институт общественных зданий" Госстроя России (научный консультант - канд. архит. A.M.Гарнец);

при участии специалистов: ЦНИИП градостроительства РААСН (канд. архит. Е.П.Меньшикова); ЗАО ЦНИИЭП им. Б.С.Мезенцева (канд. архит. О.П.Кравченко); НИИТАГ РААСН (канд. архит. Н.П.Крайняя); МАрхИ (канд. архит. А.В.Сикачев, арх. М.Г.Новицкая); ФЦС Стройсертификация (канд. архит. Л.А.Викторова); МНИИТЭП (канд. архит. С.Н.Яхкинд, канд. архит. Н.С.Генкина); ВНИИСФК (канд. архит. Л.П.Хаханова).

Внесен Департаментом по вопросам реабилитации и социальной интеграции инвалидов Минтруда России (И.В.Лебедев, А.Е.Лысенко).

Представлен к утверждению: Управлением архитектуры и проектных работ Госстроя России (Э.А.Шевченко, Н.Н.Якимова), Управлением градостроительства, землепользования и территориального развития (С.А.Колегов, Н.П.Кузьмич), Управлением стандартизации, технического нормирования и сертификации Госстроя России (В.В.Тишенко, Н.Н.Поляков, Л.А.Викторова).

Согласован: Главным управлением Государственной противопожарной службы МВД России, Госсанэпиднадзором Минздрава России, Главгосэкспертизой России, Всероссийским обществом инвалидов, Всероссийским обществом слепых и Всероссийским обществом глухих.

В тексте и графической части Свода правил использованы следующие материалы:

  • Закон Российской Федерации "О социальной защите инвалидов в Российской Федерации" от 24 ноября 1995 г. N 181-ФЗ (Собрание законодательства Российской Федерации, 1995 г., N 48, ст.4563) и Федеральный закон "О внесении изменений и дополнений в статьи 15 и 16 Федерального закона "О социальной защите инвалидов в Российской Федерации" от 8 августа 2001 г. N 123-ФЗ (Собрание законодательства Российской Федерации, 2001 г., N 33, ст.3426);
  • Постановление Правительства Российской Федерации "О мерах по обеспечению беспрепятственного доступа инвалидов к информации и объектам социальной инфраструктуры" от 7 декабря 1996 г. N 1449 (Собрание законодательства Российской Федерации, 1996 г., N 51, ст.5806);
  • Рекомендации по проектированию окружающей среды, зданий и сооружений с учетом потребностей инвалидов и других маломобильных групп населения;
  • Выпуск 2 "Градостроительные требования";
  • Выпуск 20 "Промышленные предприятия, здания и сооружения для труда инвалидов различных категорий";
  • Рекомендации по проектированию вокзалов (к СНиП 2.07.01-89* и СНиП 2.08.02-89*);
  • Рекомендации по проектированию общественно-транспортных центров (узлов) в крупных городах(к СНиП 2.07.01-89*).

В тексте учтены предложения и замечания следующих учреждений и организаций: Главгосэкспертизы России (Ю.Е.Мельников, С.В.Кролевец), Управления архитектуры и проектных работ (Э.А.Шевченко, Н.Н.Якимова), Управления технического нормирования (В.В.Тишенко, Н.Н.Поляков, Л.А.Викторова), Управления градостроительства, землепользования и территориального развития Госстроя России (С.А.Колегов, Н.П.Кузьмич), Главного управления Государственной противопожарной службы (В.П.Молчанов, А.А.Панов), Госсанэпиднадзора Минздрава России (Л.П.Гульченко, Т.Я.Пожидаева), Всероссийского общества инвалидов (В.И.Антипов, С.Е.Соболев), Всероссийского общества глухих (Н.М.Кильманов, А.В.Иванов), Всероссийского общества слепых (Л.П.Абрамова, Г.И.Иванова).

В СП 35-105-2002 использованы следующие термины и определения:

Градостроительные требования - основные нормативно-правовые требования, относящиеся к планировке и застройке городов, их территориальных зон и отдельных элементов, инженерно-транспортной инфраструктуре.

Реконструкция - преобразование существующей застройки с частичным изменением (или без) планировочной структуры, строительством одного или нескольких новых зданий взамен ветхих или морально устаревших зданий, с заменой элементов инженерной и транспортной инфраструктуры, осуществлением благоустройства территории.

Транспортно-пересадочный узел (ТПУ) - место концентрации или пересечения нескольких линий (маршрутов) городского (автобусного, троллейбусного, трамвайного) и внеуличного рельсового (метрополитен, электрифицированная железная дорога) пассажирского транспорта, обустроенное единой системой пешеходных коммуникаций.

1. Область применения

1.1 Требования настоящего Свода правил (СП) установлены для проектирования и осуществления реконструкции существующей застройки с соблюдением доступности зданий, сооружений и их комплексов для инвалидов и других маломобильных групп населения (далее - инвалидов).

Свод правил содержит обязательные правила, рекомендуемые положения, проектно-организационные мероприятия по формированию доступной для инвалидов среды жизнедеятельности в городах и соответствует установкам СНиП 10-011). Рекомендации распространяются на проектирование объектов, доступных для инвалидов с поражением опорно-двигательного аппарата, недостатками зрения, дефектами слуха и других маломобильных групп населения.

1) Документ утратил силу на основании Постановлением Госстроя России от 10.09.2003 N 164.

1.2 Настоящий Свод правил следует использовать при решении комплекса социальных, экономических, экологических и архитектурно-художественных задач, при последовательном приспособлении среды жизнедеятельности к потребностям инвалидов.

1.3 Основные требования к проектной документации на реконструкцию городской застройки с учетом доступности для инвалидов и других маломобильных групп населения изложены в приложении А настоящего СП.

2. Нормативные ссылки

2.1 В настоящем СП даны ссылки на следующие документы:

  • Градостроительный кодекс Российской Федерации от 7 мая 1998 г. N 73-ФЗ1) (Собрание законодательства Российской Федерации, 1998 г., N 19, ст.2069);
    1) На территории Российской Федерации документ не действует. Действует Градостроительный кодекс Российской Федерации от 29.12.2004 N 190-ФЗ.
  • СНиП 10-01-94 "Система нормативных документов в строительстве. Основные положения";
  • СНиП 21-01-97* "Пожарная безопасность зданий и сооружений";
  • СНиП 35-01-2001 "Доступность зданий и сооружений для маломобильных групп населения";
  • СНиП 2.07.01-89* "Градостроительство. Планировка и застройка городских и сельских поселений";
  • СНиП 2.08.02-89*1) "Общественные здания и сооружения";
    1) На территории Российской Федерации документ не действует. Действуют СНиП 31-06-2009.
  • Социальные нормативы и нормы. Одобрены распоряжением Правительства Российской Федерации N 1063-р от 3 мая 1996 г.1);
    1) Вероятно, ошибка оригинала. Следует читать: распоряжением Правительства Российской Федерации N 1063-р от 3 июля 1996 г.
  • СП 31-102-99 "Требования доступности общественных зданий и сооружений для инвалидов и других маломобильных посетителей";
  • СП 31-103-99 "Здания, сооружения и комплексы православных храмов";
  • СП 35-101-2001 "Проектирование зданий и сооружений с учетом доступности для маломобильных групп населения. Общие положения";
  • РДС 35-201-99 "Порядок реализации требований доступности для инвалидов к объектам социальной инфраструктуры";
  • Рекомендации по проектированию общественно-транспортных центров (узлов) в крупных городах;
  • Рекомендации по проектированию вокзалов.

3. Основные положения

3.1 Проектные решения по реконструкции сложившейся застройки должны учитывать физические возможности всех категорий населения, включая инвалидов, и должны быть направлены на повышение качества городской среды по критериям доступности, безопасности, комфортности и информативности в соответствии с требованиями Градостроительного кодекса РФ.

3.2 Основным принципом формирования безопасной и удобной для инвалидов городской среды является создание условий для обеспечения беспрепятственной доступности объектов обслуживания в зонах застройки различного функционального назначения, зонах рекреации, а также в местах пользования транспортными коммуникациями, сооружениями, устройствами, пешеходными путями. Следует учитывать не только физическую и пространственную, но и информационную доступность объектов.

3.3 При создании доступной для инвалидов среды жизнедеятельности необходимо обеспечивать:

  • возможность беспрепятственного передвижения с помощью трости, костылей, кресла-коляски, собаки-проводника, а также при использовании транспортных средств (индивидуальных, специализированных или общественных);
  • создание внешней информации: визуальной, тактильной (осязательной) и звуковой;
  • комплексное решение системы обслуживания: размещение (согласно проектному расчету) специализированных объектов и объектов обслуживания общего пользования при различных формах собственности на недвижимость.

3.4 Основные функциональные и эргономические параметры формирования среды жизнедеятельности для инвалидов следует принимать в соответствии с требованиями СНиП 35-01 и СНиП 2.07.01.

3.5 Положения СП предусматривают вариантность разработки проектных градостроительных решений по обеспечению среды, удобной для инвалидов и других маломобильных групп населения, и выбор оптимального варианта. При этом типология ориентиров для безопасных пешеходных передвижений инвалидов с недостатками зрения должна быть единой для всех вариантов проектных решений.

В зависимости от местных особенностей и условий, численности инвалидов, функционального назначения объекта градостроительного проектирования могут быть применены согласно РДС 35-201 различные проектно-организационные формы реализации градостроительных решений, вноситься изменения в целевые программы, однако они не должны противоречить направлениям, целям и задачам, определенным статьями 14, 15, 16 Федерального закона "О социальной защите инвалидов в Российской Федерации".

3.6 Проектно-организационные решения и мероприятия, направленные на создание для инвалидов условий доступности к объектам социальной инфраструктуры в процессе реконструкции застройки, следует определять исходя из учета планируемых на ближайшие периоды работ по проектированию и строительству новых зданий и сооружений, предназначенных для уплотнения либо замены существующей застройки, ремонту и реконструкции существующих объектов, ремонту и укладке нового полотна проезжей части улиц и тротуаров, а также ремонтно-восстановительных работ.

При этом целесообразно предусматривать создание пространственно взаимосвязанных зон, в пределах которых обеспечивается доступность всех зданий и сооружений, а также необходимая для инвалидов информационная среда.

Конечной целью является полная реконструкция сложившейся городской среды, всех ее элементов с учетом потребностей инвалидов и других маломобильных групп населения, при которой должны соблюдаться требования пожарной безопасности зданий и сооружений в соответствии с требованиями СНиП 21-01.

4. Планировка и застройка реконструируемых территорий и зон

Жилые зоны

4.1 Исходным положением является обеспечение возможности проживания инвалидов во всех частях и районах города. При этом следует учитывать особенности градостроительной ситуации и последовательность реконструктивных работ на рассматриваемой территории.

4.2 В центральных районах городов в условиях выборочной реконструкции необходимо поэтапное формирование доступной (безбарьерной) среды, предусматривая:

  • обеспечение удобных и безопасных пересечений транспортных и пешеходных путей, в том числе в разных уровнях;
  • развитие сферы услуг, предоставляемых учреждениями торговли, общественного питания и досуга, ориентированных на удовлетворение потребностей различных групп населения, в том числе инвалидов и других маломобильных групп;
  • многообразие жилищного фонда и возможности его приспособления для нужд инвалидов: отремонтированные дома исторической застройки небольшой этажности, расселяемые и ремонтируемые коммунальные квартиры в доходных домах, новые корпуса в комплексе с сохраняемыми постройками.

4.3 В исторических зонах городов в процессе реконструкции должна быть обеспечена доступность объектов социальной инфраструктуры для живущих в этом районе инвалидов и маломобильных групп населения, а также доступность памятников истории, культуры и архитектуры, культовых зданий для всех людей, включая инвалидов, в том числе приезжающих из других районов.

4.4 В историческую среду жилых зон рекомендуется включать учреждения, предоставляющие услуги как для населения в пределах своей жилой зоны, так и инвалидов и лиц старшего возраста, проживающих на прилегающих территориях (например, центр социального обслуживания, частные пансионаты на 30-50 чел. и др.).

Отдельные жилые дома и общественные здания в исторической застройке, подлежащие реконструкции с отселением, целесообразно полностью или частично (первые этажи) использовать для помещений или учреждений социального обслуживания.

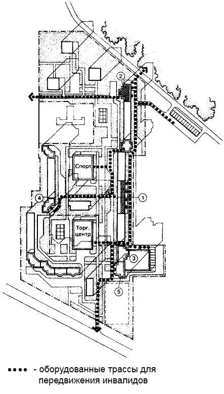
4.5 Районы массовой жилой застройки 60-70-х годов, составляющие основу срединных и периферийных зон городов, должны рассматриваться при градостроительном проектировании как территориально-структурный резерв улучшения городской среды, в которых в полном объеме следует реализовать предлагаемые СП мероприятия по созданию доступной среды для инвалидов (рисунок 1).

В проектах следует предусматривать реконструкцию, сочетающую уплотняющее новое строительство с обновлением (капитальный ремонт, модернизация) существующих зданий, а также поэтапный снос и замену тех зданий, модернизация или реконструкция которых нецелесообразны по ряду критериев (рисунок 2). При этом должны решаться вопросы создания удобной среды обитания для инвалидов.

4.6 При формировании доступной для инвалидов среды в сложившихся районах массовой жилой застройки следует предусматривать:

  • возможность обеспечения удовлетворительных экологических условий в сочетании с хорошими условиями транспортной доступности;
  • нормативную насыщенность учреждениями обслуживания;
  • возможность в процессе реконструкции переустройства жилищ с учетом потребностей инвалидов;
  • обеспечение территориальных резервов для специально оборудованных рекреационно-коммуникативных устройств и гаражей для инвалидов.

4.7 В районах существующей индивидуальной усадебной застройки необходимо предусматривать рациональное использование земельных участков в соответствии с правилами землепользования и застройки, упорядочение улично-дорожной сети в связи с делением либо слиянием участков, улучшение или замену покрытий улиц и дорог, размещение малых центров обслуживания, мест приложения труда и мест общения жителей односемейных домов, инженерное обустройство и озеленение территории.

В связи с увеличением в районах малоэтажной усадебной застройки радиусов доступности учреждений обслуживания всех видов (в соответствии с действующими строительными нормами) рекомендуется применение различных форм обслуживания и трудовой занятости инвалидов на дому, обеспечение инвалидов индивидуальными видами транспорта, применение специализированных видов общественного транспорта, размещение малых предприятий (мини-производств), в которых может быть использован труд инвалидов.

Целесообразно размещение в комплексе с общественным центром района индивидуальной застройки центра социального обслуживания с дневным пребыванием инвалидов и пожилых людей.

4.8 Жилые районы города и их улично-дорожная сеть должны проектироваться с учетом прокладки пешеходных маршрутов для инвалидов и маломобильных групп населения с устройством доступных им подходов к площадкам и местам посадки в общественный транспорт.

4.9 При реконструкции районов с полной или частичной заменой старого жилого фонда рекомендуется выбирать такие типы жилых домов для нового строительства, в которых все квартиры в случае необходимости могут быть переоборудованы с учетом потребностей инвалидов, и размещать эти дома целесообразно вблизи объектов, наиболее посещаемых инвалидами. При превышении нормативной доступности отдельных учреждений обслуживания эти услуги могут быть предусмотрены во встроенных в жилые дома учреждениях (например, медпункт, аптечный киоск, стол заказов и др.) согласно разделу 14 СП 31-102.

4.10 Пешеходные пути к объектам повседневного обслуживания инвалидов не должны пересекаться в одном уровне с городскими транспортными магистралями. На районных магистралях и жилых улицах допускается устройство наземных переходов, оборудованных сигнализацией, либо создание перед переходом искусственно неровной дороги (специально созданной на проезжей части дороги искусственной преграды для автомобиля, обозначенной знаком "неровная дорога" и вынуждающей водителя сбавлять скорость до 30 км/ч).

В условиях реконструкции, когда нельзя обеспечить выполнение нормативных радиусов доступности учреждений повседневного обслуживания (низкоплотная малоэтажная усадебная застройка, крутой рельеф и др.), предпочтение должно быть отдано маршруту без препятствий, хотя и более длинному.

Общественные здания и учреждения

4.11 При реконструкции застройки следует учитывать требования СНиП 2.08.02 и обеспечивать доступность для инвалидов учреждений и предприятий обслуживания, а наиболее часто посещаемые объекты максимально приближать к местам проживания инвалидов, что предполагает сокращение нормируемых радиусов доступности (рисунок 3).

Учреждения повседневного обслуживания (торговые предприятия, предприятия общественного питания, бытового обслуживания) рекомендуется размещать на расстоянии не более 300 м (при нормируемом максимальном радиусе доступности 500 м), учреждения лечебно-профилактические - на расстоянии не более 500 м. Пешеходные пути от жилых домов до объектов обслуживания необходимо формировать с учетом размещения наиболее посещаемых учреждений обслуживания, выполняя общие требования, предъявляемые к организации путей передвижения для инвалидов.

4.12 Продовольственные магазины, ориентированные на обслуживание инвалидов и других маломобильных групп населения и обеспечивающие их товарами повседневного спроса, рекомендуется размещать в радиусе обслуживания не более 300 м.

4.13 Предприятия общественного питания для инвалидов рекомендуется предусматривать в пределах жилого квартала (микрорайона), а также в местах размещения учреждений социального обслуживания и реабилитации инвалидов.

4.14 Предприятия бытового обслуживания, в том числе пункты приема белья в стирку и химчистку, рекомендуется размещать с радиусом обслуживания до 300 м. Если тот или иной тип услуг может быть обеспечен (и будет обеспечен) инвалиду на дому, то радиус этого вида предприятия бытового обслуживания принимается по действующим нормам (от 500 до 800 м).

В конкретных случаях при обосновании целесообразности размещения предприятий бытового обслуживания как мест приложения труда, исходя из профессиональных потребностей инвалидов, вместимость и условия размещения таких предприятий определяются местными правилами застройки или градостроительной документацией.

4.15 Часть услуг, оказываемых организациями и учреждениями управления, кредитно-финансовыми учреждениями и предприятиями связи, возможна надомным способом (отправление телеграмм, получение пенсий, нотариальное оформление документов и др.), но нередко требует присутствия клиента. Поэтому радиус удаленности таких объектов рекомендуется до 500 м.

Посещение инвалидами предприятий эпизодического пользования (организации и учреждения управления, суды и т.п.) обеспечивается, как правило, с помощью транспортных средств.

4.16 Аптеки согласно действующим нормам должны размещаться в радиусе до 500 м. Для безрецептурной продажи лекарств, перевязочных средств, предметов ухода за больными рекомендуется организация аптечных киосков в радиусе до 300 м.

4.17 Поликлиники, амбулатории в существующей городской застройке имеют нередко радиус обслуживания более 1500-2000 м (по действующим нормам - 1000 м). В случае невозможности строительства новых поликлиник в сложившейся застройке для обеспечения инвалидов и других маломобильных групп населения амбулаторным обслуживанием, приближенным к жилым комплексам, рекомендуется предусматривать создание медпунктов, встроенных или пристроенных к существующим зданиям.

4.18 Доступность учреждений культуры общегородского значения (театры, концертные залы, цирки и др.), размещаемых в общественно-деловых зонах города, для инвалидов обеспечивается в основном с помощью транспортных средств, а также посредством организации подъездов и подходов к этим объектам, а также автостоянок.

4.19 В условиях реконструкции жилой застройки рекомендуется формировать клубы социальной поддержки с ориентацией на инвалидов и другие маломобильные группы населения (общение, проведение лекций, благотворительных мероприятий, продажа необходимых товаров, оказание услуг и др.), а также библиотеки. Радиусы обслуживания этих объектов рекомендуется принимать не более 500 м.

4.20 Доступность зданий культового назначения для инвалидов должна быть обеспечена так же, как и к другим общественным зданиям и соответствовать СП 31-103. Особое внимание рекомендуется уделять организации безопасных пересечений пешеходных путей с проезжей частью прилегающих улиц, формированию подходов и площадей, а также входов в храмы.

4.21 В числе первоочередных и обязательных должны предусматриваться мероприятия по обеспечению условий доступности для инвалидов любых категорий во все учреждения социальной защиты населения, а также государственные и муниципальные учреждения, в той или иной степени связанные с решением проблем инвалидов.

Такие учреждения следует размещать по возможности вблизи центров муниципальных районов. Если на территории района имеются специальные жилые дома для инвалидов, то их следует приближать к этим домам. Кроме того, учреждения социальной защиты могут блокироваться с учреждениями муниципальной администрации, районными эксплуатационными управлениями. В их структуру целесообразно включать отделения районных обществ инвалидов. При этом должны учитываться Социальные нормативы и нормы.

4.22 Учитывая значительные различия в половозрастной структуре населения и удельном весе инвалидов в составе населения по регионам, при расчете реальных объемов учреждений социального обслуживания допускается отклонение от действующих нормативных показателей.

Количество и мощность реабилитационных центров для инвалидов определяются исходя из реальных потребностей (по числу нуждающихся в регионе) или на основе имеющихся территориальных норм.

При выборе мест размещения домов-интернатов для инвалидов и лиц старшего возраста следует обеспечивать доступность учреждений первичного обслуживания (если их нет на территории интерната) на расстоянии не более 300 м.

4.23 Количество протезно-ортопедических предприятий со стационаром, предполагающим лечение, протезирование и прохождение адаптационного периода по приспособлению пользованием протезом, рекомендуется принимать из расчета 1-1,5 на 1 млн чел.

Наряду со стационарным предприятием рекомендуется строительство одной протезно-ортопедической мастерской на 250 тыс. чел.

4.24 Общественные туалеты рекомендуется предусматривать, исходя из расчета 1 прибор на 1 тыс. чел. и оборудовать в них, как правило, одну кабину для инвалида. Их месторасположение должно иметь специальное обозначение. При организации подземных туалетов необходимо устройство подъемника или пандуса.

4.25 Специализированные детские дошкольные учреждения и школы-интернаты для детей с физическими нарушениями следует размещать в озелененных районах или в пригородной зоне на удалении от промышленных предприятий, улиц и дорог с интенсивным движением транспорта и железнодорожных путей, а также других источников повышенного шума, загрязнения воздуха и почвы в соответствии с действующими нормами. Специализированные школы-интернаты для детей с недостатками зрения и дефектами слуха следует располагать на расстоянии не менее 1500 м от радиостанций, радиорелейных установок и пультов.

4.26 В целях максимального приспособления существующей городской среды для нужд инвалидов до проведения реконструкции квартала (микрорайона) следует согласно РДС 35-201 провести работу по оценке существующего состояния, выявлению резервов развития и потребностей. В связи с этим необходимо:

  • оценить реальное расселение инвалидов на реконструируемой территории и выявить потребности инвалидов в новом жилище. В случае ограниченности ресурсов особое внимание для первоочередных мероприятий рекомендуется сконцентрировать на обустройстве жилищной среды придомовых территорий и обеспечении безбарьерных путей к объектам обслуживания;
  • произвести "инвентаризацию" существующих объектов обслуживания и определить "сохраняемые" объекты;
  • определить вид реконструкции, а соответственно возможности внесения изменений в структуру объектов обслуживания;
  • разработать мероприятия по адаптации реконструируемой среды для инвалидов.

4.27 Реализуя статьи 15 и 16 Федерального закона "О социальной защите инвалидов в Российской Федерации", следует адаптировать объекты социального обслуживания к потребностям инвалидов.

Согласно СНиП 35-01 организация системы учреждений и предприятий, ориентированных на обслуживание инвалидов, реализуется в двух вариантах: технического обеспечения или самообеспечения инвалидов, что определяет два способа создания для них доступной среды.

В первом случае подразумевается максимальное использование технических средств: заказ на определенную услугу из дома (целесообразнее всего через специализированную диспетчерскую) и в соответствии с заказом - либо доставка услуг на дом, либо подача транспортных средств и перемещение инвалида в оборудованные для него учреждения.

При таком решении нет необходимости все учреждения адаптировать к условиям доступности, а только крупные и комплексные объекты, которые легче поддаются такой адаптации и могут предоставить более высокий уровень услуг. Выбор объектов зависит от характера конкретной застройки. Так, для малых и средних городов обустройству для инвалидов могут быть подвергнуты только общегородские объекты.

Планировочные решения по реконструкции должны включать мероприятия по обустройству придомового пространства и пространства вокруг отобранных объектов обслуживания с организацией удобной посадки и высадки инвалидов из транспортных средств.

Второй вариант предполагает ориентацию на максимальное самообеспечение, что потребует реконструкции каждого жилого комплекса с выделением внутриквартальных объектов обслуживания для инвалидов и прокладки пешеходных путей к этим объектам.

4.28 При разработке проекта реконструкции, ориентированного на самообеспечение инвалидов, рекомендуется выделить из всех объектов обслуживания те, которые следует приспособить для инвалидов в первую очередь. Одновременно с этим необходимо:

  • определить перечень первоочередных объектов, обеспечивающих инвалидов местами приложения труда и рекреационными объектами;
  • определить номенклатуру существующих объектов обслуживания на реконструируемой территории, которые будут приспособлены для доступа инвалидов, и дополнить эту сеть недостающими типами учреждений методом:
    1. нового строительства. В тех случаях, когда в зоне сложившейся застройки возникает необходимость в строительстве новых жилых или общественных зданий, проектные решения таких зданий и прилегающей к ним территории должны соответствовать требованиям действующих нормативных документов в области строительства с соблюдением условий доступности их для инвалидов;
    2. перепрофилирования существующих зданий;
    3. встраивания и пристраивания;
  • выявить возможности реконструкции объектов обслуживания данной территории, но находящихся за пределами реконструируемой территории и найти пути создания к ним безбарьерного доступа.

Производственные зоны

4.29 Статья 21 Закона РФ "О социальной защите инвалидов в Российской Федерации" позволяет реализовать возможность трудоустройства инвалидов практически на всех предприятиях, в организациях и учреждениях независимо от организационно-правовых форм и форм собственности. Поэтому необходимо выполнять общие требования, обеспечивающие безопасное передвижение инвалидов к местам приложения труда. В частности, следует предусмотреть для инвалидных колясок подъезд к главному входу предприятия шириной не менее 1,8 м согласно 3.3 СНиП 35-01.

На предзаводской территории специализированных предприятий для инвалидов с нарушением зрения рекомендуется установить знак (символ, эмблему, наименование предприятия и т.п.), указывающий главный вход на территорию предприятия. Контрольно-пропускные пункты на территорию предприятия следует оборудовать звуковым маяком, информационным табло.

4.30 Места труда инвалидов рекомендуется размещать, по возможности, компактно, обеспечивая:

  • безопасность передвижения по территории;
  • отсутствие элементов, создающих препятствия на путях передвижения;
  • минимальную протяженность пешеходных путей передвижения.

Целесообразно предусматривать четкую планировку территории предприятия в целях улучшения ориентации в пространстве инвалидов с дефектами зрения. Основные пути движения по территории рекомендуется проектировать по прямоугольной схеме (рисунок 4).

4.31 Остановки общественного транспорта и стоянки личного автотранспорта инвалидов рекомендуется размещать не далее 50 м от контрольно-пропускного пункта на предприятии. Они должны быть оборудованы платформой, уровень поверхности которой соответствует уровню пола транспортных средств. Платформу следует оборудовать навесом или павильоном, поручнями и пандусом (рисунок 5).

Места для стоянки личных автотранспортных средств инвалидов должны быть выделены разметкой. Места стоянки для автомобилей инвалидов, пользующихся для передвижения креслами-колясками или костылями, желательно располагать ближе к контрольно-пропускному пункту и обозначать специальным символом.

На территории предприятия, имеющего застройку из нескольких производственных корпусов, могут быть предусмотрены вблизи отдельных корпусов места для стоянок личного автотранспорта инвалидов.

4.32 Наземные пешеходные переходы через улицы, примыкающие к территории предприятия, желательно делать регулируемыми. Светофоры, регулирующие переход, следует оборудовать звуковым маяком и автодорожным знаком "слепые пешеходы" (рисунок 6). При интенсивном движении по магистралям в местах их пересечения с пешеходными подходами к предприятиям необходимо предусматривать подземные переходы с учетом требований 5.13 настоящего СП.

4.33 Пешеходные пути от остановок общественного транспорта и пешеходных переходов до контрольно-пропускного пункта предприятия оборудуются поручнями, направляющими передвижение инвалидов с недостатками зрения. Расположение поручней не должно препятствовать движению по предзаводской территории остальных людей. Архитектурное оформление входа на предприятие также может способствовать лучшей ориентации инвалидов с недостатками зрения (рисунок 7).

4.34 На территории предприятия необходимо, по возможности, исключать пересечение и совмещение пешеходных путей инвалидов с основными грузовыми потоками.

Участки пешеходных дорожек и тротуаров, примыкающие к местам их пересечения с внутризаводскими проездами, должны иметь фактурную поверхность покрытия, отличную от других участков тротуара (рисунок 8).

4.35 Все предметы, являющиеся препятствием на путях пешеходного движения инвалидов, в том числе: деревья, осветительные столбы и тому подобное, рекомендуется огораживать.

Основные пути движения инвалидов с недостатками зрения по территории целесообразно оборудовать направляющими поручнями, а при протяженности путей более 100 м - площадкой для кратковременного отдыха.

4.36 Осветительные устройства на путях движения целесообразно устанавливать по одной стороне дороги. Освещенность поверхностей путей движения по территории предприятия в вечернее время должна обеспечивать не менее 20 лк при лампах накаливания и не менее 40 лк - при люминесцентных лампах.

4.37 Территория предприятия должна быть снабжена системой ориентиров и информации, разработанной в каждом конкретном случае пpи консультации специалистов по медицинской реабилитации инвалидов.

Визуальная информация, хорошо читаемая и воспринимаемая, необходима для ориентации инвалида и предупреждения его о возможных источниках опасности, в том числе архитектурно-строительных препятствиях. Она должна давать информацию по размещению объектов и помещений производственной деятельности, социального и культурно-бытового обслуживания и административно-конторских.

Специальными знаками или символами согласно 7.3 СП 35-101 целесообразно обозначать повседневно или периодически посещаемые инвалидами здания, сооружения и места на территории предприятия, пересечения пешеходных путей с проездами, входы и выходы на территорию, в отдельные цехи и т.п. Элементы визуальной информации рекомендуется размещать на контрастном фоне на высоте не менее 1,5 м и не более 4,5 м от уровня поверхности пешеходного пути.

На территории предприятия дополнительно может быть предусмотрена звуковая информация в виде установки отдельных звуковых маяков или радиофикации всей территории.

речевой,информатор,датчик,движения,привод2,звуковой,маяк, инвалид, пешеход, тактильный, индикатор, гост, система, слепой, ограничения, незрячий, рельефные, слепые,указатель, тактильная, пиктограмма,доступная,среда,брайль,незрячий,гост,слепые
Маяк светозвуковой «Привод-3» Артикул: 41039 Размеры: 590x375x125 мм Производитель в России: ООО «Вертикаль» Скачать тех. задание

4.38 Специальные площадки для физкультурных занятий и активного отдыха инвалидов целесообразно группировать в едином комплексе. При их устройстве важно обеспечивать безопасность занятий, а для инвалидов с недостатками зрения - возможность ориентирования в пространстве. Для этого окружающая среда должна быть достаточно разнообразной по цвету, фактуре, освещению (рисунок 9).

Рекреационные зоны

4.39 Формирование комфортной рекреационной среды, приспособленной для нужд инвалидов, предполагает, прежде всего, создание для них непрерывной коммуникационной инфраструктуры, охватывающей все элементы рекреационной зоны. Существующие пешеходные маршруты следует оборудовать площадками для отдыха визуальными, звуковыми, тактильными и прочими средствами ориентации, информации и сигнализации, а также средствами вертикальной коммуникации (подъемники, эскалаторы).

Разнообразие функциональных элементов рекреационного объекта необходимо дополнять специальным мощением, пандусами, поручнями, подъемниками, сигнальными устройствами для инвалидов с недостатками зрения, визуальные ориентирами для инвалидов с дефектами слуха, специальными объектами "попутного" обслуживания, позволяющими получить услугу без выхода из автомобиля, особыми местами для парковки, туалетами для инвалидов на креслах-колясках, таксофонами и почтовыми ящиками, расположенными на удобной для инвалида высоте, рекламой и др.

4.40 Освоение инвалидами рекреационной среды, в том числе ее неадаптированных пространств, может и должно происходить также и за счет применения технических средств, повышающих индивидуальные возможности инвалидов, обеспечивающих комфортные условия передвижения (коляски, автомобили, механические и электронные приспособления, протезы и т.п.).

4.41 Организация мест отдыха в городах должна удовлетворять условиям доступности для инвалидов:

  • на территориях, непосредственно связанных с местами проживания инвалидов (на придомовой территории, на территории квартала);
  • при общественных зданиях микрорайонного и районного значения;
  • в скверах, садах и парках районного значения;
  • при специализированных объектах для инвалидов (центрах социальной помощи, стационарных учреждениях социального обслуживания и т.п.);
  • при культурно-зрелищных учреждениях, торговых центрах и других объектах городского значения;
  • в городских парках и лесопарках.

4.42 На придомовой территории при реконструкции квартала (микрорайона) или благоустройстве его территории необходимо в первую очередь создавать возможность свободного передвижения для инвалидов и маломобильных групп населения, для их ежедневного отдыха и общения, контакта с природной средой, проведения физкультурно-оздоровительных занятий.

В проектах комплексной реконструкции и благоустройства рекомендуется предусматривать: перепланировку придомовых территорий и жилых дворов с выделением участков зеленых насаждений; оборудование площадок, приспособленных для отдыха, общения, любительских и физкультурно-оздоровительных занятий инвалидов; реконструкцию пешеходных дорог и входов в подъезды жилых домов; размещение стоянок и гаражей для индивидуальных транспортных средств инвалидов.

4.43 Реконструкцию пешеходных путей микрорайонов и жилых районов рекомендуется вести с учетом обеспечения возможности для ежедневной прогулки инвалидов и маломобильных групп населения. Организация рекреационного маршрута целесообразна по озелененным участкам с возможностью периодического отдыха и общения, а также посещения ближайшего магазина, аптеки, учреждений социального обслуживания, рекреационной зоны и т.п.

Площадки для отдыха на таких маршрутах рекомендуется размещать через каждые 100-150 м. Рекреационные маршруты следует прокладывать обособленно от транспортных проездов или отделять от них полосой кустарников, а также хорошо освещать. Ширина пешеходной дорожки должна быть не менее 5 м, продольный уклон - не более 8%, поперечный - не более 2%.

4.44 Рекреационная зона жилого квартала, соответствующая требованиям адаптации для инвалидов, может быть организована в комплексе с центром социального обслуживания, что позволит в летнее время расширить клубную работу, создать условия для любительских занятий, игр, общения, отдыха инвалидов на свежем воздухе.

4.45 Перед входами в общественные здания районного или же городского значения рекомендуется формировать небольшие озелененные и благоустроенные площадки для отдыха, оборудованные навесами, скамьями, телефонами-автоматами, указателями, светильниками, сигнализацией, что позволит создать условия для комфортного кратковременного отдыха инвалидов.

4.46 Адаптация рекреационной среды в районных и городских парках с учетом их планировочной организации, рельефа и других ландшафтных особенностей должна сводиться к:

  • обеспечению доступности входов в парк и подходов к основным объектам и сооружениям;
  • организации прогулочных маршрутов (кольцевых, линейных и т.п.) на озелененной территории парка.

Прогулочные маршруты целесообразно ориентировать на входы в парк, увязывать с объектами посещения основных функциональных зон парка. При этом рекомендуется учитывать три основных типа парковой среды: общего пользования, специализированный и отдыха и общения с природой, адаптация которых к нуждам инвалидам имеет свою специфику.

В районных и городских парках следует предусматривать специально оборудованные туалеты для инвалидов согласно 3.66, 3.67 СНиП 35-01 и 9.21 СП 31-102.

обеспечение доступности мгн, проектирование для инвалидов, парковая зона, парк, доступность объектов, безбарьерная среда
Проект парковой зоны доступной для инвалидов Артикул: 20148 Производитель в России: ООО «Вертикаль» Скачать тех. задание

4.47 В местах массового отдыха наряду с обеспечением доступности для инвалидов существующих рекреационных объектов рекомендуется выделять для инвалидов и лиц старшего возраста зону кратковременного отдыха и общения. Должна быть предусмотрена специальная система указателей. Дорожки в пределах такой зоны рекомендуется обозначать с помощью покрытий различных видов и цвета. Они должны хорошо освещаться и иметь ширину не менее 1,8 м (для разъезда двух инвалидов на креслах-колясках). Значительно облегчает передвижение и ориентацию прямоугольная сетка аллей и дорожек.

На автостоянке парка целесообразно выделить места для инвалидов, оснащенные специальной маркировкой и информацией.

4.48 При организации мест отдыха на берегах рек и водоемов необходимо предусматривать удобные и безопасные для инвалидов подходы к воде. Для безопасной посадки в лодку, водный велосипед или другое плавсредство необходимо сооружение пирсов со специальными приспособлениями для инвалидов.

4.49 Дорожно-тропиночная сеть парков должна отвечать условиям комфортности и безопасности передвижения, хорошей ориентации, смены пейзажных картин, использования ландшафтных особенностей территории для устройства интересных видовых точек.

Площадки для отдыха инвалидов должны располагаться в интервалах от 25 до 100 м. Поверхность таких площадок должна отличаться от поверхности дорожек. Парковая мебель должна обеспечивать возможность отдыха как инвалидов с недостатками зрения, так и инвалидов, передвигающихся на креслах-колясках.

4.50 Игровые площадки для детей желательно защищать от ветра и приспосабливать для пребывания как детей-инвалидов, так и родителей-инвалидов. Например, в детском парке оборудование для развлечений предполагает использование их детьми-инвалидами различного возраста и различной инвалидности. При этом возможны ситуации пребывания в парке здоровых детей с родителями-инвалидами. Для таких случаев целесообразно устройство мест отдыха взрослых инвалидов с возможностью наблюдения ими за своими детьми.

4.51 Для эпизодического отдыха могут быть использованы, при соответствующей реконструкции, следующие типы учреждений:

  • рекреационные учреждения общего типа (дома отдыха, санатории, кемпинги, молодежные лагеря и т.д.), в которых следует создавать условия для отдыха инвалидов посредством соблюдения всех требований по обеспечению доступности основных коммуникационных и обслуживающих помещений для инвалидов. В санаториях целесообразно предусматривать места для людей различной степени инвалидности, нуждающихся в лечении по профилю санатория;
  • дома и пансионаты отдыха для инвалидов и семей, в составе которых имеются инвалиды. В таких учреждениях в большей степени может быть учтено пребывание инвалидов за счет наличия обустроенных залов для физических занятий, бассейнов и др.;
  • реабилитационные центры, осуществляющие лечение и долечивание по профилю инвалидности, в том числе медицинскую и социальную реабилитацию.

4.52 При выборе объектов рекреации для реконструкции желательно максимально обеспечить инвалидов разнообразными видами отдыха, среди них в первую очередь такими, как санаторное лечение, пассивный отдых в домах и на базах отдыха, туризм (в тех случаях, когда инвалид освобожден от долгих пеших передвижений), кратковременный (пригородный) отдых. Кроме перечисленных (возможно в более ограниченных масштабах), такие как охота, рыбалка, спортивный туризм.

При отборе рекреационных учреждений с целью их адаптации для инвалидов предпочтение целесообразно отдавать районам с благоприятными климатическими и природными условиями (так, из всех видов ландшафта лучше избегать горные районы, районы севера и т.п.). Обязательным условием является транспортная доступность объекта для инвалидов.

4.53 На федеральном уровне может производиться селекция уникальных рекреационных объектов, услуги которых не могут быть заменены другими. Эти объекты должны быть общедоступными, в том числе для инвалидов, при различных формах собственности на недвижимость.

В качестве обязательного реконструктивного мероприятия следует считать организацию транспортной и пешеходной доступности инвалида от междугородного транспортного узла (железнодорожный вокзал, аэропорт, автостанция, речной вокзал и т.п.) до санатория с созданием доступной для инвалида системы информации и связи на этих транспортных узлах.

4.54 На региональном уровне рекомендуется производить отбор объектов длительного отдыха, адаптация которых возможна с учетом потребностей инвалидов; выявлять возможности создания туристических групп познавательного туризма, исходя из природной, исторической и культурной специфики края. Организация отдыха с целью посещения историко-культурных ценностей возможна лишь при создании специальных маршрутов только для маломобильных групп населения с соответствующим транспортным обеспечением.

4.55 Реконструктивные мероприятия в пригородных зонах кратковременного отдыха включают:

  • обеспечение доступности этих зон для инвалидов;
  • обустройство территории, пляжей, прокладку маршрутов отдыха;
  • реконструкцию дорожно-тропиночной сети, позволяющую инвалидам совершать пешие, водные, лыжные прогулки, ловить рыбу, собирать грибы и ягоды.

Маршруты могут охватывать различные зоны и объекты. Исходя из условий безопасности, маршрут должен проходить по сравнительно ровной местности с устойчивым и твердым поверхностным слоем почвы. При прокладке дорожек необходимо обеспечить их незатопляемость во время сильных дождей. На болотистых участках сооружаются дощатые настилы, при наличии ручьев - мосты, а при уклонах местности - поручни.

4.56 Прогулочные маршруты могут быть ленточными или кольцевыми. Кольцевой маршрут дает возможность вернуться в начальную точку, используя кратчайший путь, что наиболее предпочтительно для инвалидов. Природная тропа должна быть оборудована указательными столбами, осветительными приборами, информационными стендами, опознавательными отметками, цветными бортами, маркерами с контрастной покраской, индикаторами и поручнями для инвалидов с недостатками зрения (рисунок 10). Вдоль тропы должны располагаться площадки для отдыха с навесами, видовые площадки, туалеты, устройства вызова спасательной службы.

Длину маршрута рекомендуется принимать от 100 до 200 м с полным комплексом оборудования для инвалидов с недостатками зрения и инвалидов с нарушением опорно-двигательного аппарата, передвигающихся с помощью кресел-колясок. Для остальных категорий инвалидов и групп маломобильного населения маршруты могут быть увеличены до 1500 м. Ширина дорожек этих маршрутов должна быть не менее 1,6 м с гравийным покрытием и отсутствием на пути препятствий.

4.57 Для передвижения по воде (в моторных лодках с плоским дном) сооружаются специальные пирсы, позволяющие инвалиду беспрепятственно сесть в лодку.

Рыбная ловля может быть организована с лодок или в специально отведенных местах, оборудованных мостками, стоящими в воде.

Для купания выбираются наиболее удобные места, желательно с молом, обеспечивающим более легкий вход в воду. Для не умеющих плавать устраиваются выгородки.

4.58 Наиболее массовые участки маршрута целесообразно освещать. Начальную точку маршрута желательно приближать к остановке общественного транспорта. Проезд машин на маршруте должен быть строго запрещен.

4.59 Маршрут рекомендуется ориентировать на главный вход и подъезд к рекреационной зоне, а также обеспечивать возможность для путешествующих вернуться к главному входу кратчайшим путем из любой точки маршрута.

На площадке для кратковременной стоянки автомобилей необходимо предусматривать для автомашин инвалидов места, оснащенные специальной маркировкой и информацией.

5. Транспортные и пешеходные коммуникации и зоны

5.1 Обеспечение комфортных и безопасных условий передвижения инвалидов и других маломобильных групп населения по трудовым и культурно-бытовым целям следует учитывать на всех стадиях проектирования системы транспортных и пешеходных коммуникаций.

5.2 В условиях реконструкции отдельных объектов или функциональных территорий города необходимо предусматривать планировочную и техническую организацию всего процесса пешеходно-транспортного передвижения людей, включая:

  • подходы к зданиям и комплексам различного назначения, остановочным пунктам, станциям, вокзалам; передвижения в комплексных объектах и др.;
  • пользование транспортными средствами;
  • возможность осуществления пересадки с одной линии на другую или с одного вида транспорта на другой.

5.3 Пешеходные пути должны быть обустроены с учетом требований доступности для всех групп инвалидов: с поражением опорно-двигательного аппарата, с недостатками зрения, с дефектами слуха.

5.4 При проектировании пешеходных путей к различным объектам города необходимо предусматривать создание специальных участков для передвижения инвалидов, исходя из норматива протяженности пути для инвалида на кресле-коляске до 300 м. Устройство таких пешеходных путей должно обеспечивать проезд по ним инвалидных колясок и передвижение инвалидов с недостатками зрения. Уклоны пешеходных дорожек, тротуаров не должны превышать 5% для продольного, 1% для поперечного (в отдельных случаях допускается увеличивать продольный уклон до 10% на протяжении 10 м пути с устройством горизонтальных площадок вдоль спуска) в соответствии с 3.3 СНиП 35-01.

Кроме того, для удобства пешеходных передвижений инвалидов с поражением опорно-двигательного аппарата такие участки следует обустраивать пандусами, ограждениями, ребристой поверхностью пути. При пересечении улиц и магистралей необходимо предусматривать переходы, оснащенные визуальной и звуковой сигнализацией, островками безопасности и др.

5.5 На пешеходных путях передвижения инвалидов с поражением опорно-двигательного аппарата следует предусматривать площадки для отдыха не реже чем через 300 м, а также подсветку путей фонарями-ориентирами, установленными с одной стороны пешеходного пути на высоте 0,3-0,4 м от земли с интервалом в 2-3 м.

5.6 На пешеходных путях для инвалидов с недостатками зрения, пользующихся тростью, следует применять информационное изменение фактуры покрытия пути.

5.7 На пешеходных путях для удобства передвижения всех групп инвалидов необходимо устанавливать подъемники и лифты при уклонах свыше 30°, предусматривать дублирование лестниц пандусами, устройство ограждений.

5.8 На путях передвижения инвалидов должны быть определены места установки торговых и телефонных автоматов, устройства общественных туалетов, а также остановки общественного транспорта и стоянки личного транспорта инвалидов с обеспечением удобных подходов к ним. Торговые и телефонные автоматы, фонари-подсветки должны иметь ограждения, исключающие возможность столкновения инвалидов, имеющих недостатки зрения, с опорами этих устройств.

5.9 При проектировании (реконструкции) пешеходных путей для инвалидов необходимо руководствоваться рекомендациями:

  • пешеходные пути рекомендуется предусматривать по возможности короткими без вынужденных подъемов и спусков, при необходимости - специально оборудованными;
  • средняя длина пути, как правило, не должна превышать 300 м;
  • пешеходные пути в целях безопасности рекомендуется создавать с минимальным числом их пересечений с путями движения транспорта;
  • необходимо обеспечение полного или частичного разделения основных встречных и пересекающихся потоков пешеходов в местах массовых передвижений.

5.10 Необходимо предусматривать создание доступных для инвалидов пешеходных путей в процессе планово проводимых работ по ремонту полотна, покрытий дорог и тротуаров. По мере проведения реконструктивных и ремонтных работ рекомендуется предусматривать мероприятия по благоустройству и озеленению пешеходных путей и прилегающей к ним территории.

5.11 При проектировании путей передвижения, которыми будут пользоваться инвалиды с нарушениями опорно-двигательного аппарата, включая передвигающихся на креслах-колясках, следует предусматривать возможности компенсации двигательных функций. Например, в необходимых случаях рекомендуется пути передвижения оборудовать поручнями, перилами, подъемниками и т.п. (рисунок 11).

5.12 Для обеспечения безопасности и удобства передвижения и ориентации инвалидов с недостатками зрения целесообразно покрытие тротуаров в местах подходов к препятствиям, входам в здания и около пешеходных переходов через проезжую часть улицы выполнять из твердых, прочных материалов и рельефных плит, не допускающих скольжения, а пересечения с проезжими частями улиц снабжать светофорами со звуковым сигналом. Следует также учитывать, что окружающую архитектурную среду для инвалидов с недостатками зрения определяют форма и фактура предметов.

Покрытие из бетонных плит должно быть ровным, а толщина швов между плитами - не более 1,5 см. Ребра решеток, устанавливаемых на путях движения инвалидов, должны располагаться перпендикулярно направлению движения и на расстоянии друг от друга не более 1,3 см.

Предупреждающую информацию для инвалидов с недостатками зрения о приближении их к препятствиям (лестницам, пешеходному переходу, островку безопасности и др.) следует обеспечивать изменением фактуры поверхностного слоя покрытия дорожек и тротуаров, направляющими рельефными полосами и яркой контрастной окраской.

5.13 В наземных переходах рекомендуется предусматривать съезды, пандусы, установку низкого бордюрного камня и рельефного предупреждающего покрытия в пределах тротуара, при необходимости - устраивать специальное ограждение.

Подземные пешеходные переходы через магистрали следует оборудовать пандусом и поручнями.

Устройство пандуса в подземном переходе должно соответствовать требованиям СНиП 35-01 и СП 35-101.

Транспортное обслуживание

5.14 В зависимости от социально-экономических условий и местных особенностей могут быть рекомендованы следующие возможные варианты совершенствования транспортного обслуживания инвалидов в пределах города:

  • обеспечение всех инвалидов, физические и эргономические возможности которых не позволяют им пользоваться обычными видами транспорта, специально приспособленными для них индивидуальными видами транспорта;
  • использование специально приспособленных для инвалидов общественных видов транспорта - автобусов и микроавтобусов, которые двигаются по определенным маршрутам в соответствии с жестким расписанием. Такие маршруты могут устанавливаться при участии органов социальной защиты и общественных объединений инвалидов на основе выявления мест наиболее частого посещения инвалидами и для связи с пересадочными узлами городского и внегородского транспорта;
  • оборудование всего или части подвижного состава на обычных маршрутах городского пассажирского транспорта для перевозки инвалидов;
  • создание специальных транспортных служб, обеспечивающих перевозку инвалидов на оборудованных для этого автомашинах или автобусах по предварительному заказу или вызову;
  • применение различных комбинаций перечисленных вариантов транспортного обслуживания инвалидов.

5.15 Выбор схемы транспортного обслуживания инвалидов должен основываться на экономической целесообразности с учетом форм собственности транспортных предприятий, особенностей расселения инвалидов и их предпочтений в маршрутах передвижений. Это не означает, что практически все транспортные средства, особенно на начальных этапах совершенствования систем пассажирского транспорта, должны быть доступны для инвалидов. Последующее развитие и совершенствование системы транспортного обслуживания инвалидов может идти постепенно, по мере выявления реальных потребностей инвалидов, с одной стороны, и насыщения парка специализированным пассажирским транспортом - с другой.

5.16 На открытых стоянках автомобилей, располагаемых в пределах территории жилых районов, а также около учреждений культурно-бытового обслуживания населения, предприятий торговли и отдыха, спортивных зданий и сооружений, мест приложения труда, следует выделять места для личных автотранспортных средств инвалидов.

Минимальное число таких мест следует принимать 4% общего числа мест, но не менее 1 места при общем числе мест на стоянке до 100, при большей вместительности автостоянки - до 10% согласно 3.12 СНиП 35-01.

5.17 На автомобильных стоянках при специализированных зданиях и сооружениях для инвалидов следует выделять для личных автомашин инвалидов не менее 10% мест, а около учреждений, специализирующихся на лечении спинальных больных и восстановлении опорно-двигательных функций, - не менее 20% мест в соответствии с 3.12 СНиП 35-01.

Стоянки с местами для автомобилей инвалидов должны располагаться на расстоянии не более 50 м от общественных зданий, сооружений, жилых домов, в которых проживают инвалиды, а также от входов на территории предприятий, использующих труд инвалидов.

пандус, инвалида, рампа, парковка, знак, для, инвалидов, производитель, парковочный, столбик, краска, нанесения, трафарет, инвалидная, коляска, съезд, стойка, демотиватор
Дорожный знак 6.4 "Парковка (парковочное место)", 700х700 Артикул: 10040 Размеры: 700x700x20 мм Производитель в России: ООО «Вертикаль» Скачать тех. задание

5.18 Площадки для остановки специализированных средств общественного транспорта, перевозящих инвалидов, следует предусматривать на расстоянии не более 100 м от входов в общественные здания и не более 300 м от жилых зданий, в которых проживают инвалиды. При этом должны соблюдаться нормы СНиП 2.07.01 по удаленности наземных, наземно-подземных гаражей и открытых стоянок легковых автомобилей от жилых домов и общественных зданий.

5.19 Места для стоянки личных автотранспортных средств инвалидов должны быть выделены разметкой и обозначены специальными символами. Ширина стоянки для автомобиля инвалида должна быть не менее 3,5 м согласно 3.12 СНиП 35-01.

Транспортно-пересадочные узлы

5.20 При реконструкции и реновации зданий вокзалов и вокзальных комплексов как наиболее сложных пересадочных узлов, сосредоточивших сооружения, устройства и коммуникационные элементы взаимодействующих видов транспорта (метрополитен, уличный городской транспорт, станции железных дорог и др.), следует предусматривать специальные инженерно-строительные, организационные и другие мероприятия по созданию больших удобств для пассажиров-инвалидов и других маломобильных групп населения с учетом "Рекомендаций по проектированию вокзалов".

5.21 При проектировании сложных пересадочных узлов следует предусматривать следующие планировочные и инженерно-строительные решения:

  • максимальное приближение вестибюлей вокзала и метрополитена (либо другого вида скоростного городского транспорта);
  • сооружение дополнительных вокзальных объемов в виде конкорсов, мостов над путями с размещением в них залов ожидания, попутного обслуживания, создающими удобства и возможность непосредственного выхода на платформы к поездам следования;
  • размещение помещения обслуживания инвалидов (зал ожидания, туалеты и др.) на первых этажах;
  • удаление остановочных пунктов городского транспорта от входов в вокзал не более 150-200 м;
  • сооружение системы городских проездов, внеуличных переходов, автостоянок в зоне привокзальной площади, обеспечивающих удобный подъезд и стоянку индивидуальных автомобилей инвалидов, а также специального автотранспорта.

5.22 В целях создания больших удобств для инвалидов, лиц старшего возраста, пассажиров с детьми в пересадочных узлах следует предусматривать разделение движения пассажиров и транспорта. В зависимости от конкретных условий размещения вокзальных комплексов и их планировочных решений используются различные приемы организации в них движения. На рисунке 12 показаны приемы организации движения пассажиров в вокзальных комплексах в зависимости от их планировочных решений.

5.23 При реконструкции городской застройки следует предусматривать создание объединенных и блокированных вокзалов, что значительно повысит удобства пассажиров, в том числе инвалидов, при поездке с пересадками, даст им возможность получить в одном месте всю необходимую информацию, приобрести билет, сдать багаж и др. При этом исключаются затраты времени и сил инвалидов на переезды по городу, уменьшается загрузка городского транспорта (рисунки 13, 14, 15). Целесообразно учитывать положения "Рекомендаций по проектированию вокзалов".

5.24 В процессе реконструкции сложных пересадочных узлов следует предусматривать достижение максимальной компактности сооружений и устройств узлов, использование локальных транспортных систем (транспортеры, лифты, подъемники, движущиеся дорожки и др.), ряд инженерно-строительных мер, облегчающих передвижения инвалидов (рисунки 16, 17).

При создании многоуровневых (2 и более уровней) пересадочных узлов с использованием подземного пространства (глубиной от 6 до 60 м и более) целесообразно использование дополнительных 4, 5 линий эскалаторов, а также лифтов и подъемников, обслуживающих инвалидов и других физически ослабленных лиц. В таких градостроительных объектах рекомендуется создавать подземные или полуподземные пешеходные площади с учреждениями обслуживания, билетными кассами и др.

Вертикальный подъёмник ПВт-1ПУ2
Вертикальный подъёмник ПВт-1ПУ2 1300x3000x250мм Артикул: 96001 Размеры: 3008x1126x1140 мм Производитель в России: ООО «Вертикаль» Скачать тех. задание

5.25 При реконструкции зданий и сооружений пассажирского транспорта необходимо предусматривать доступность для инвалидов всех предназначенных для пассажиров помещений, платформ и переходов.

В зонах ожидания транспорта и отдыха пассажиров следует обеспечивать условия оптимального визуального и слухового восприятия инвалидами систем информационного обеспечения в виде светового табло с расписанием движения транспорта и информацией об отправлении и прибытии транспорта, радиообъявлений и т.п.

5.26 Тесная взаимосвязь транспортно-пересадочных узлов с прилегающей территорией и застройкой повышает ценность окружающего их городского пространства, что требует обоснованного подхода к функциональному насыщению этой территории, ее рациональной планировочной организации и интенсификации использования, учета требования создания удобной безбарьерной среды для инвалидов (рисунок 18).

5.27 В общественно-транспортных центрах, включающих крупные торговые, зрелищные и другие объекты, отмечается наибольшая концентрация пассажиропотоков. При реконструкции таких территорий следует учитывать положения "Рекомендаций по проектированию общественно-транспортных центров (узлов) в крупных городах".

Для удобства инвалидов здесь следует предусматривать специальные пешеходные зоны, участки обустроенных для инвалидов пешеходных путей, ограждения, подъемники и другие мероприятия, обеспечивающие удобную для инвалидов среду в зависимости от конкретных условий застройки и рельефа (рисунок 19).

5.28 В структуру общественно-транспортных центров города входят привокзальные площади. Их особенностью является наличие значительных по территории пересадочных зон с расстояниями между остановочными пунктами уличного и внешнего (магистрального) транспорта до 700 м, числом маршрутов, проходящих по площади, более 20 и числом остановок наземного транспорта 10 и более. Схема организации движения транспорта и пешеходов на привокзальной площади приведена на рисунке 20. В таких центрах следует предусматривать специальные мероприятия по созданию удобной среды для инвалидов (пешеходные пути, переходы, стоянки автотранспорта и др.).

5.29 В условиях сложных планировочных решений вокзальных комплексов, многофункциональных центров, пересадочных узлов следует предусматривать организацию движения пешеходов и транспорта в двух или нескольких уровнях с использованием тоннелей, эстакад и других сооружений для развязки потоков пешеходов и транспорта (рисунок 21).

На главных пешеходных путях вокзальных комплексов с пассажиропотоками 25 чел.-мин и более и протяженностью более 100 м в целях облегчения передвижения инвалидов, а также пассажиров с детьми рекомендуется предусматривать движущиеся дорожки, тротуары (рисунок 22).

5.30 В целях упорядоченного и безопасного передвижения пассажиров, включая инвалидов и лиц старшего возраста, в общественно-транспортных узлах (особенно формирующихся на базе вокзальных комплексов) следует соблюдать следующие основные правила организации главных пешеходных путей:

  • пути движения пешеходов (пассажиров и посетителей) должны быть возможно более удобными, короткими и прямыми, без вынужденных подъемов и спусков с поворотом под прямым углом. Средняя длина пешеходного пути пассажиров от остановочных пунктов городского общественного транспорта до места в транспортном средстве (вагон, самолет, судно и др.) не должна превышать 300 м;
  • пути движения пешеходов (пассажиров и посетителей) должны быть безопасными, с минимальным количеством их пересечений с путями движения всех видов городского, служебно-вспомогательного и внешнего транспорта;
  • должно быть обеспечено полное или частичное разделение основных встречных и пересекающихся потоков пассажиров в зданиях и на привокзальной площади;
  • необходимые пассажирам и посетителям помещения и устройства (на площади, в пассажирском здании, в группе зданий центра) должны быть расположены последовательно с учетом обеспечения удобства их посещения.

5.31 При реконструкции центральных и других общественно-деловых зон города необходимо предусматривать пешеходные зоны (площади, улицы), свободные от движения транспорта и доступные для инвалидов.

5.32 Пешеходные зоны, расположенные, как правило, в общегородском центре или вблизи него, имеют разнообразные транспортные связи (метрополитен, троллейбус, автобус, такси) с другими территориями города. Остановочные пункты общественного транспорта должны размещаться соответственно размерам и конфигурации пешеходной зоны по ее периметру таким образом, чтобы обеспечивалась максимальная удаленность по крайней мере одного из них в 300 м, что равно нормируемому пешеходному пути для инвалида на кресле-коляске.

5.33 Остановки всех видов городского транспорта и стоянки такси должны обеспечивать возможность посадки-высадки пассажиров-инвалидов, пользующихся креслами-колясками. На остановках должна быть хорошо читаемая информация о маршрутах, выполненная укрупненным шрифтом и в контрастном цвете.

5.34 При подземном или полуподземном размещении пешеходной зоны, многофункциональных центров, вокзальных комплексов, пересадочных узлов в плотной городской застройке необходимо предусматривать сооружение подъемников, эскалаторов, лифтов для подъема и спуска инвалидов и маломобильных групп населения (рисунок 23).

Лестничные марши должны иметь ограждающие устройства, перила и дублироваться пандусами.

5.35 У границ пешеходных зон, кроме остановочных пунктов общественного транспорта, как правило, предусматриваются стоянки для индивидуального транспорта, где следует выделять места для личных транспортных средств инвалидов. Число таких мест устанавливается согласно 5.16 настоящего СП.

Места, выделенные для стоянки автомобилей инвалидов, как правило, следует оборудовать навесами на случай непогоды, они должны иметь специальное обозначение.

5.36 В пешеходных зонах следует предусматривать специальные участки пути с возможностью проезда по ним инвалидных колясок, передвижения инвалидов с недостатками зрения. Устройство пешеходных путей для инвалидов на креслах-колясках должно осуществляться согласно 5.9 настоящего СП.

В пешеходных зонах (часто торговых улицах) возле остановок общественного транспорта необходимо предусматривать места (площадки) для отдыха инвалидов. Они должны располагаться равномерно на расстоянии около 100 м друг от друга.

На площадках для отдыха должны размещаться скамьи со спинками и место для кресла-коляски. Часть мест для отдыха располагается под навесом для защиты от осадков.

скамья, опорный, поручень, вертикальная, настенная, информационный, стенд, усилитель, система, движения, инвалид, пешеход, тактильный, индикатор, гост, слепой, ограничения, незрячий, рельефные, слепые, указатель, тактильная, пиктограмма, доступная, с
Скамья наклонная, для улицы и помещений, AISI 304, М1 Арт. 80040 Размеры: 1070x1200x386 мм Производитель в России: ООО «Вертикаль» Скачать тех. задание
скамья, опорный, поручень, вертикальная, настенная, информационный, стенд, усилитель, система, движения, инвалид, пешеход, тактильный, индикатор, гост, слепой, ограничения, незрячий, рельефные, слепые, указатель, тактильная, пиктограмма, доступная, с
Скамья универсальная, со спинкой, AISI 304 Арт. 80040-2 Размеры: 918x1590x614 мм Производитель в России: ООО «Вертикаль» Скачать тех. задание

Пешеходные зоны должны оборудоваться на специально отведенных местах, снабженных хорошо различимыми указателями, различными автоматами: торговыми для мелких покупок, газированной воды, размена денег, выдачи информации и др. Возможно выделение территории для устройства площадок просмотра кино- и видеофильмов, которыми могут заинтересоваться инвалиды. Здесь также следует обеспечивать удобный доступ физически ослабленным лицам.

6. Информационное обеспечение

6.1 Информационное обеспечение решает несколько задач:

  • обеспечивает общую ориентацию в структуре города, района, микрорайона, квартала;
  • предоставляет сведения о местоположении объектов, включая те, которые предназначены или доступны для инвалидов;
  • предупреждает о возможных опасностях.

6.2 Необходимо применять единую систему знаков, символов, маркировки, а также крупноразмерных рекламных опознавательных знаков-символов, обозначающих однотипные учреждения или предприятия, либо отдельные зоны с одинаковыми или сходными функциями.

Все доступные для инвалидов учреждения и места общего пользования должны быть обозначены специальными знаками или символами в виде пиктограмм установленного международного образца согласно 3.16 СП 35-101.

При реконструкции территорий, прилегающих к общественным зданиям, рекомендуется предусматривать дополнительное специальное наружное освещение для выделения элементов входов в здания, рекламных и информационных указателей, а также участков повышенной опасности, открытых лестниц, пандусов и т.п.

6.3 Информация для людей с недостатками зрения может быть осязательной (тактильной) и звуковой. Осязательная информация представляет собой устройство рельефной поверхности на участках пути, размещение рельефных (с выпуклыми элементами и обозначениями) схем участков городской территории, планов общественных зданий на высоте, доступной для осязания рукой, т.е. на высоте 0,5-1,0 м. На такой же высоте должны устанавливаться таблички наименования учреждений (в первую очередь, государственных и муниципальных) с выпуклым текстом.

Говорящая пиктограмма 305x220x40мм
Говорящая пиктограмма 307x218x65мм Артикул: 10663 Размеры: 305x220x40 мм Производитель в России: ООО «Вертикаль» Скачать тех. задание

На подходах к лестницам и препятствиям для инвалидов с недостатками зрения следует использовать яркую и контрастную предупреждающую окраску, а также предусматривать сигнальное ограждение опасных участков пути.

На пешеходных переходах для безопасности передвижения инвалидов с недостатками зрения следует устанавливать звуковую информацию, в том числе светофоры со звуковым сигналом. При этом необходимо устранять другие звуковые помехи и шумы.

6.4 Любая звуковая информация, в том числе объявления по громкоговорящей связи, на вокзалах и в других местах массового скопления людей, должна дублироваться в виде текстовой информации на табло, дисплеях, мониторах и других визуальных средствах для обеспечения ориентации и создания доступности транспортных коммуникаций для инвалидов с дефектами слуха.

6.5 На пешеходных и транспортных коммуникациях для инвалидов с дефектами слуха должны быть установлены световые (проблесковые) маячки, сигнализирующие об опасном приближении (прибытии) транспортного средства (поезд, автобус, троллейбус, трамвай, судно и др.) в темное время суток, сумерках и в условиях плохой видимости (дождь, туман, снегопад).

Приложения

Приложение А. Требования к градостроительной документации

Приложение А
(справочное)

1 Работа по формированию доступной среды для инвалидов должна начинаться с предпроектных исследований и подготовки задания на проектирование в соответствии с требованиями РДС 35-201.

2 На стадии генерального плана города и его пригородной зоны (или концепции генерального плана) необходимо определить:

  • функциональные зоны и районы, подлежащие первоочередной реконструкции;
  • условия размещения в них объектов, наиболее посещаемых инвалидами;
  • места приложения труда и обеспечение их доступности;
  • рекреационные зоны для обустройства кратковременного загородного отдыха инвалидов;
  • основные общественно-транспортные узлы и очередность их реконструкции или нового строительства.

На основе генплана может быть разработана муниципальная программа создания удобной для инвалидов среды в городе.

3 На стадии проекта планировки реконструируемых районов должны решаться вопросы обеспечения инвалидов жилищем, в том числе специализированным, вопросы размещения основных объектов и организация транспортно-пешеходных связей. Определяется порядок формирования безбарьерных зон, а также основные пешеходные маршруты (подходы к общественным центрам, транспортно-пересадочным узлам и др.), выделяются места и озелененные территории для отдыха инвалидов и лиц старшего возраста. Особое внимание необходимо уделить формированию общественных территорий - реконструкции улиц, площадей, пешеходных зон, бульваров, скверов и других озелененных территорий общего пользования, не подлежащих согласно действующему законодательству приватизации и являющихся общедоступными. Заданию на проектирование должно предшествовать предпроектное исследование, конкретизирующее муниципальную программу создания безбарьерной среды на уровне района реконструкции.

4 В проекте застройки отдельного квартала или микрорайона конкретизируются решения по обеспечению доступной для инвалидов среды жизнедеятельности, намечаемые в проектах планировки района.

Отличительной характеристикой этого проекта является максимальная адресность предусматриваемых решений в увязке с возможностями реализации. Обязательным является обеспечение комплексности и завершенности всей системы, формирующей удобную для инвалидов среду.

Рекомендуется проводить предпроектные исследования в целях выявления реально сложившейся системы передвижений населения, условий использования учреждений обслуживания, в том числе инвалидами.

На этой стадии следует уточнить демографическую ситуацию, в том числе относительно инвалидов (места их проживания, возраст, категория инвалидности, семейные условия, профессиональные данные). Это позволит выявить необходимый набор объектов обслуживания и характер коммуникаций к этим объектам. На основании полученных данных следует внести дополнения в задание на проектирование по объектам обслуживания и обеспечения доступности этих объектов для инвалидов.

5 С учетом конкретной ситуации и намечаемой реконструкции дополняются требования к созданию подъездных путей и оборудованию автостоянок для инвалидов, исходя из принципа обеспечения всех инвалидов-автовладельцев автостоянками по месту жительства в пределах нормируемых расстояний доступности.

6 В градостроительную документацию рекомендуется включение раздела "Мероприятия по организации среды для инвалидов" с описанием предлагаемых в проекте решений.

7 Рекомендуемая методическая последовательность оценки возможностей города для размещения мест приложения труда и реабилитационных центров для инвалидов приведена в приложении Б настоящего СП.

8 Составлению задания на реконструкцию промышленного предприятия с учетом потребностей инвалидов должна предшествовать предпроектная аналитическая работа архитекторов, технологов и врачей-реабилитологов. Эта работа может идти по разным направлениям в зависимости от поставленной задачи: максимальное использование возможностей данного конкретного производства по созданию рабочих мест для инвалидов независимо от мест их проживания; максимальное трудоустройство на данном предприятии инвалидов, проживающих в близлежащем жилом районе; создание специализированного цеха (производственного участка) для труда определенной категории инвалидов и т.п.

9 Предпроектная работа складывается из следующих этапов:

  • выявление профессий и специальностей на данном производстве, пригодных для труда инвалидов (проводят совместно технолог и врач-реабилитолог);
  • определение цехов, производственных участков или помещений, потенциально пригодных для инвалидов, а также помещений, повседневно посещаемых работающими инвалидами (комнаты приема пищи, бытовые помещения и т.п.) (осуществляют технолог и проектировщик);
  • предварительное определение точек размещения рабочих мест, пригодных для инвалидов, в технологической схеме производственного процесса на предприятии (технолог);
  • определение категорий инвалидности, для которых показано трудоустройство на выявленных потенциальных рабочих местах (врач-реабилитолог);
  • выявление строительных и планировочных барьеров на путях движения инвалидов к потенциальным рабочим местам (проектировщик);
  • предварительное составление комплекса мероприятий по обеспечению доступности рабочих мест для инвалидов (проектировщик и технолог);
  • предварительная экономическая оценка комплекса мероприятий по реконструкции предприятия для обеспечения рабочими местами инвалидов. Определение обязательных и рекомендуемых реконструктивных мероприятий. Выявление экономически нецелесообразных мероприятий по отдельным рабочим местам (проектировщик и технолог);
  • составление экономически целесообразного и оптимального варианта размещения рабочих мест для инвалидов (проектировщик совместно с технологом и врачом-реабилитологом);
  • составление задания на реконструкцию предприятия с учетом потребностей инвалидов на базе оптимальной схемы размещения рабочих мест для инвалидов в структуре предприятия (проектировщик совместно с технологом и врачом-реабилитологом).

10 Комплекс мероприятий по адаптации производственной среды для трудоустройства инвалидов должен быть достаточно гибким и динамичным для того, чтобы в процессе эксплуатации предприятия имелась возможность достаточно частого преобразования его среды с учетом потребностей инвалидов, а также с учетом того, что контингент инвалидов по категориям может изменяться.

Рекомендуется в современных социально-экономических условиях специализированные предприятия для инвалидов проектировать, ориентируясь не на одну какую-либо категорию инвалидности, а на все категории, исходя из того, что в этом случае могут быть более полно охвачены трудоустройством инвалиды, проживающие в пределах пешеходной доступности.

11 В предпроектные исследования по преобразованию рекреационных зон рекомендуется включать такие этапы работы, как:

  • выявление основных объектов, посещаемых инвалидами;
  • анализ условий размещения, доступности этих объектов, качества окружающей среды;
  • разработка предложений по возможному использованию инвалидами рекреационных объектов, а также необходимому оборудованию, благоустройству и информационному оснащению территории;
  • разработка модели поэтапного преобразования рекреационной зоны;
  • разработка задания на реконструкцию (проектирование) рекреационной зоны, адаптируемой к потребностям инвалидов и других маломобильных групп населения.

12 Для поэтапного решения задачи адаптации реконструируемой застройки с учетом требований доступности инвалидов рекомендуется:

  • концентрация ресурсов на приоритетных объектах и направлениях;
  • поэтапное выполнение проектно-строительных работ;
  • обеспечение комплексности в реализации проектно-строительных и технологических решений.

13 Благоустройство внутриквартальных территорий, выполняемое, как правило, жилищно-эксплуатационным управлением, должно осуществляться в соответствии с принятыми проектными решениями. В проектах застройки должны быть конкретно отражены требования обеспечения доступной для инвалидов среды жизнедеятельности, а также последовательность реализации принятых градостроительных решений.

Приложение Б. Оценка возможностей городских поселений для размещения мест приложения труда и реабилитационных центров для инвалидов при реконструкции существующей застройки

Приложение Б
(справочное)

Таблица Б.1

N п.п. Условия Общие требования (критерии) к формированию специализированных центров (мест приложения труда) Оценка возможностей городских поселений для размещения специализированных центров (мест приложения труда) для инвалидов
1 Градостроительные (планировочные) Возможность взаимосогласованного размещения основных элементов и функциональных зон.
Возможность создания комплекса условий работы, проживания, лечения различных категорий инвалидов
Оценка потенциальных территориальных ресурсов.
Оценка планировочной организации участка предполагаемого размещения специализированного центра и возможности его адаптации к новым функциям
2 Функционально-хозяйственные Возможность получения квалифицированной медицинской помощи.
Возможность создания различных форм организации мест приложения труда.
Возможность организации нескольких видов деятельности.
Возможность получения необходимой (второй) профессии
Выявление количества инвалидов, нуждающихся в реабилитации, их категория, существующая трудовая специализация.
Выявление потенциала существующего специализированного медицинского персонала.
Выявление потенциала существующих специальных учебных заведений.
Оценка существующей специализации города (района). Наличие предприятий, соответствующих предполагаемому профилю занятости, выявление профессий и специальностей на данном производстве, пригодных для труда инвалидов
3 Уровень развития городской среды Возможность обеспечения высокого уровня социального обслуживания.
Наличие развитой инфраструктуры
Оценка совокупности объектов социальной инфраструктуры.
Оценка потенциала инженерно-транспортной инфраструктуры и его соответствие требованиям развития специализированного центра
4 Состояние окружающей среды Благоприятная экологическая обстановка:
отсутствие загрязнения воздушного и водного бассейна
наличие рекреационных ресурсов (зеленых массивов, водных поверхностей и т.п.)
возможность организации кратковременного отдыха
Оценка уровня загрязнения воздушного и водного ресурсов.
Выявление рекреационных ресурсов.
Выявление наличия объектов кратковременного и длительного отдыха

Рис. 1. Пример реконструкции крупной жилой зоны в районе массовой типовой застройки 60-70-х годов с учетом потребностей инвалидов

Пример реконструкции крупной жилой зоны с учетом потребностей инвалидов

1 - дома с размещением группы квартир для инвалидов; 2 - квартирный дом для инвалидов с центром социального обслуживания; 3 - поликлиника; 4 - блоки учреждений обслуживания с местами приложения труда и гаражами для инвалидов; 5 - пешеходные улицы; 6 - оборудованные переходы

Рис. 2. Функционально-планировочная организация жилой группы в районе массовой типовой застройки с учетом потребностей инвалидов

Функционально-планировочная организация жилой группы с учетом потребностей инвалидов

1 - группа квартир с приквартирными участками для инвалидов на кресле-коляске в первом этаже многоквартирного дома после его капитального ремонта и модернизации; 2 - квартиры повышенной комфортности для инвалидов в пристройках, возводимых на коммерческой основе; 3 - переоборудованный блок учреждений обслуживания с помещениями для трудовой деятельности и гаражами для инвалидов; 4 - медицинский центр в первом этаже возводимого здания; 5 - офисы в первом этаже возводимого здания; 6 - оздоровительный центр с комплексом для инвалидов

Рис. 3. Формирование районов смешанной застройки

Распределение предприятий и их сочетание в жилой застройке

Распределение предприятий и их сочетание в жилой застройке

Расположение групп предприятий в жилой застройке

Расположение групп предприятий в жилой застройке
1 - частичное использование площадей в жилом здании преимущественно в зоне первого этажа без использования площадей земельного участка; 2 - использование поперечного и бокового зданий при совместном с жильцами использовании двора; 3 - полное использование жилого земельного участка (относительно редкое явление); а - расположение на участке жилой застройки; б - расположение нескольких предприятий в жилых домах (1); в - комбинированное размещение форм 1, 2, 3; г - групповое расположение форм 2, 3; д - группа, расположенная в квартале жилой застройки; е - несколько групп, расположенных в квартале жилой застройки; ж - квартал смешанной застройки; з - компактное центральное расположение группы предприятий в квартале смешанной застройки

Рис. 4. Размещение ориентирующих устройств на предприятии для слепых и слабовидящих инвалидов

Размещение ориентирующих устройств на предприятии для слепых

1 - производственный корпус; 2, 3 - складские помещения; 4 - компрессорная; 5 - котельная; 6 - производственный корпус; 7 - сварочное отделение; 8, 9 - трансформаторные подстанции; 10 - складские помещения; 11 - административный корпус; 12, 13 - жилые дома

Рис. 5. Элементы предзаводской территории

Элементы предзаводской территории

1 - остановка общественного транспорта; 2 - подземный переход с пандусом; 3 - стоянка личного автотранспорта; 4 - городская магистраль; 5 - территория специализированного предприятия

Рис. 6. Оборудование регулируемого наземного перехода для инвалидов

Оборудование регулируемого наземного перехода для инвалидов

1 - светофор со звуковым маяком; 2 - островок безопасности; 3 - участки тротуара с рельефным покрытием

Рис. 7. Главный вход на предприятие с портиком и колоннадой, создающими светотень - ориентир для слабовидящих

С портиком

С портиком

С колоннадой

С портиком

Рис. 8. Устройство переходов через внутризаводские проезды

Устройство переходов через внутризаводские проезды

Рис. 9. Площадка для отдыха на открытом воздухе

Площадка для отдыха на открытом воздухе

а - площадка для волейбола; 1 - центральная линия; 2 - сетка; б - ориентиры на пешеходных дорожках в зонах отдыха на открытом воздухе

1; 2; 5 - ориентирующая фактура дорожек на углах (1), на основных направлениях (2), на перекрестках (5); 3 - элементы визуальной информации (стенки, посадки); 4 - направляющий поручень

Рис. 10. Схема организации природной тропы

Схема организации природной тропы

1 - тропа, обустроенная для инвалидов; 2 - информация; 3 - автостоянка; 4 - инвалиды; 5 - туалет; 6 - площадка для отдыха; 7 - купальня; 8 - костровая площадка; 9 - пешеходный мост; 10 - площадка для наблюдений; 11 - видовая площадка; 12 - тропа; 13 - длина тропы; 14 - маркеры на тропе

Рис. 11. Приемы организации передвижений инвалидов на сложных участках путей

Посадка на кресле-коляске в транспортное средство (автобус)

а - с использованием откидного пандусного приспособления

Посадка на кресле-коляске с использованием откидного пандусного приспособления

б - с помощью гидравлического подъемника

Посадка на кресле-коляске с помощью гидравлического подъемника

Передвижение в объекты, расположенные в подземном уровне здания, с помощью наклонного подъемника, устроенного рядом с эскалатором

а - вид снизу

Передвижение в объекты, расположенные в подземном уровне здания, с помощью наклонного подъемника

б - вид с уровня поверхности

Передвижение в объекты, расположенные в подземном уровне здания, с помощью наклонного подъемника

Использование подъемника на лестнице, ведущей к зданию

Использование подъемника на лестнице, ведущей к зданию

Рис. 12. Приемы организации движения пассажиров в вокзальных комплексах различного назначения

Приемы организации движения пассажиров в вокзальных комплексах различного назначения

Рис. 13. Реконструкция застройки на территории общественного центра с автовокзалом

Реконструкция застройки на территории общественного центра с автовокзалом

1 - здание автовокзала; 2 - перрон прибытия; 3 - перрон отправления; 4 - закрепленные посты транзитных автобусов; 5 - площадка межрейсового отстоя автобусов; 6 - эстакада для осмотра автобусов; 7 - стоянка автомобилей такси; 8 - стоянка индивидуальных автомобилей с выделением мест для автотранспорта инвалидов; 9 - зона культурного обслуживания, питания и др.; 10 - офисы; 11 - гостиница; 12 - пешеходная галерея с движущейся дорожкой и эскалатором; 13 - остановка общественного транспорта; 14 - автостоянка

Рис. 14. Реконструкция застройки на территории общественного центра с морским вокзалом

Реконструкция застройки на территории общественного центра с морским вокзалом

1 - морской вокзал; 2 - платформа; 3 - административно-гостиничные корпуса; 4 - вертикальные коммуникации (лифты, подъемники); 5 - перспективное строительство; 6 - открытые автостоянки; 7 - парковая зона; 8 - стоянки общественного транспорта; 9 - пирсы для малых судов; 10 - ресторан; 11 - основной причал

Рис. 15. Реконструкция застройки на территории общественного центра с железнодорожно-автобусным вокзалом

Реконструкция застройки на территории общественного центра с железнодорожно-автобусным вокзалом

1 - железнодорожный вокзал; 2 - автовокзал; 3 - площадь-мост; 4 - станция метрополитена; 5 - вертикальные коммуникации (лифты, подъемники, эскалаторы); 6 - офисы; 7 - городские магистрали; 8 - перспективные строительные площадки; 9 - стоянки автомобилей

Рис. 16. Совмещенный узел пересадки метрополитен - железная дорога

Общий вид

Совмещенный узел пересадки метрополитен - железная дорога

1 - железнодорожные пути; 2 - пути метрополитена; 3 - платформы железной дороги; 4 - платформы метрополитена; 5 - остановочные пункты городского транспорта; 6 - подземные переходы, оборудованные лестницами с пандусом, подъемниками, эскалаторами (на входах-выходах метро); 7 - городская автомагистраль

Разрез

Совмещенный узел пересадки метрополитен - железная дорога

Рис. 17. Организация пересадочного узла при совмещении станций железной дороги и метрополитена с учетом потребностей инвалидов

Организация пересадочного узла при совмещении станций железной дороги и метрополитена с учетом потребностей инвалидов

1, 2 - пути железнодорожной станции; 3 - пути метрополитена; 4, 5 - платформы метрополитена; 6, 7 - платформы железнодорожной станции; 8, 9 - подземные переходы, соединяющие платформы с выходом в город; 10 - лестницы, оборудованные пандусом; 11 - лестницы, оборудованные эскалатором или подъемником

Рис. 18. Реконструированный вокзальный комплекс

План первого этажа

Реконструированный вокзальный комплекс

1 - пассажирский вокзал; 2 - зал ожидания; 3 - кафе; 4 - кассы; 5 - багажное отделение; 6 - почтамт; 7 - хозяйственный двор; 8 - платформы; 9 - привокзальная площадь; 10 - автостанция; 11 - лестницы, оборудованные подъемником

Рис. 19. Реконструкция площади с учетом создания удобств для инвалидов

Реконструкция площади с учетом создания удобств для инвалидов

1 - универмаг; 2 - административные здания; 3 - вестибюль метро, оборудованный эскалаторами и подъемниками и объединенный с подземной площадью для пешеходов; 4 - лестница с пандусом

Рис. 20. Организация движения транспорта и пешеходов на привокзальной площади

Ситуационный план

Ситуационный план

1 - железнодорожная станция; 2 - вокзал; 3 - подземный переход

Привокзальная площадь

Ситуационный план

1 - железнодорожный вокзал; 2 - автовокзал; 3 - аэровокзал; 4 - разворотное кольцо троллейбуса; 5 - автостоянки; 6 - подземные пешеходные переходы, оборудованные лифтом; 7 - пешеходные переходы и пути, обустроенные для передвижения инвалидов; 8 - гостиница; 9 - озеленение

Рис. 21. Размещение остановочных пунктов взаимодействующих видов транспорта при Т-образной (а) и параллельной (б) схемах

Размещение остановочных пунктов взаимодействующих видов транспорта

1 - лестницы, обустроенные пандусом; 2 - вход-выход с устройством подъемника; 3 - вход-выход с устройством эскалатора

Рис. 22. Организация движения пассажиров в аэровокзале

План второго этажа

Размещение остановочных пунктов взаимодействующих видов транспорта

1 - операционный зал; 2 - зал вылета; 3 - посадочные сооружения; 4 - сектор для отдыха физически ослабленных лиц, инвалидов; 5 - сектор "Интурист"

Рис. 23. Реконструированные железнодорожный вокзал и прилегающая застройка с учетом потребностей инвалидов

Генплан

Размещение остановочных пунктов взаимодействующих видов транспорта

1 - наземные вестибюли метро; 2 - пассажирское здание; 3, 4 - платформы разных направлений железнодорожных дорог; 5 - высотная гостиница; 6 - торговый центр; 7 - крытые остановки городского транспорта

Поперечный разрез по зданию вокзала, перрону и привокзальной площади

Поперечный разрез по зданию вокзала, перрону и привокзальной площади

1 - старое здание вокзала; 2 - новый пассажирский вокзал с операционными и информационными службами, камерами хранения; 3 - подземный уровень операционного зала с эскалаторами; 4 - пешеходный тоннель с пандусами, подъемниками; 5 - движущаяся дорожка; 6, 7 - остановочные пункты городского транспорта; 8 - станция метрополитена; 9 - перрон


УДК 721.183-056.266(083.74)

Ключевые слова: градостроительные требования, реконструкция, транспортно-передаточный узел (ТПУ)