ГОСТ Р 50958-2022: Вагоны трамвайные технические требования для перевозки инвалидов

ГОСТ Р 50958-2022

Скачать Действующий Печать
Все видео
Дата введения в действие: 01.01.2023 Статус на 29.04.2026: Действующий

Федеральное агентство по техническому регулированию и метрологии


Знак ГОСТа Национальный
стандарт
Российской
Федерации
ГОСТ Р 50958-2022


ГОСТ Р 50958-2022 ВАГОНЫ ТРАМВАЙНЫЕ ТЕХНИЧЕСКИЕ ТРЕБОВАНИЯ ДЛЯ ПЕРЕВОЗКИ ИНВАЛИДОВ

Дата введения 2023-01-01

Предисловие

  1. РАЗРАБОТАН Открытым акционерным обществом "Научно-исследовательский институт автомобильного транспорта" (ОАО "НИИАТ") совместно с Федеральным государственным бюджетным учреждением "Российский институт стандартизации" (ФГБУ "РСТ")
  2.  ВНЕСЕН Техническим комитетом по стандартизации ТК 315 "Автомобильный и городской электрический транспорт"
  3. УТВЕРЖДЕН И ВВЕДЕН В ДЕЙСТВИЕ Приказом Федерального агентства по техническому регулированию и метрологии от 15 ноября 2022 г. N 1287-ст
  4. ВЗАМЕН ГОСТ Р 50958-96

Правила применения настоящего стандарта установлены в статье 26 Федерального закона от 29 июня 2015 г. N 162-ФЗ "О стандартизации в Российской Федерации". Информация об изменениях к настоящему стандарту публикуется в ежегодном (по состоянию на 1 января текущего года) информационном указателе "Национальные стандарты", а официальный текст изменений и поправок - в ежемесячном информационном указателе "Национальные стандарты". В случае пересмотра (замены) или отмены настоящего стандарта соответствующее уведомление будет опубликовано в ближайшем выпуске ежемесячного информационного указателя "Национальные стандарты". Соответствующая информация, уведомление и тексты размещаются также в информационной системе общего пользования - на официальном сайте Федерального агентства по техническому регулированию и метрологии в сети Интернет (www.rst.gov.ru)

1 Область применения

Настоящий стандарт распространяется на вагоны трамвайные, предназначенные для перевозки пассажиров, включая пассажиров-инвалидов (далее - вагоны), на линиях городского электрифицированного транспорта шириной колеи 1000 мм, 1435 мм и 1524 (1520) мм с питанием от однопроводной контактной сети в соответствии с ГОСТ 6962.

Стандарт устанавливает технические требования к конструкции, оборудованию, системам и устройствам вагонов, обеспечивающим доступность и безопасность их для пассажиров-инвалидов, в том числе в креслах-колясках.

Технические требования, установленные настоящим стандартом, являются обязательными для пользователей.

2 Нормативные ссылки

В настоящем стандарте использованы нормативные ссылки на следующие документы:

ГОСТ 6962 Транспорт, электрифицированный с питанием от контактной сети. Ряд напряжений ГОСТ Р 50602 Кресла-коляски. Максимальные габаритные размеры

ГОСТ Р 51090 Средства общественного пассажирского транспорта. Общие технические требования доступности и безопасности для инвалидов

ГОСТ Р 51671 Средства связи и информации технические общего пользования, доступные для инвалидов. Классификация. Требования доступности и безопасности

ГОСТ Р 52131Средства отображения информации знаковые для инвалидов. Технические требования

ГОСТ Р 56832 Шрифт Брайля. Требования и размеры

ГОСТ Р 59431 Система радиоинформирования и звукового ориентирования для инвалидов по зрению и других маломобильных групп населения. Технические требования. Методы испытаний

ГОСТ Р ИСО 7176-5 Кресла-коляски. Часть 5. Определение размеров, массы и площади для маневрирования

СП 98.13330.2018 Трамвайные и троллейбусные линии

Примечание - При пользовании настоящим стандартом целесообразно проверить действие ссылочных стандартов (сводов правил) в информационной системе общего пользования - на официальном сайте Федерального агентства по техническому регулированию и метрологии в сети Интернет или по ежегодному информационному указателю "Национальные стандарты", который опубликован по состоянию на 1 января текущего года, и по выпускам ежемесячного информационного указателя "Национальные стандарты" за текущий год. Если заменен ссылочный документ, на который дана недатированная ссылка, то рекомендуется использовать действующую версию этого документа с учетом всех внесенных в данную версию изменений. Если заменен ссылочный документ, на который дана датированная ссылка, то рекомендуется использовать версию этого документа с указанным выше годом утверждения (принятия). Если после утверждения настоящего стандарта в ссылочный документ, на который дана датированная ссылка, внесено изменение, затрагивающее положение, на которое дана ссылка, то это положение рекомендуется применять без учета данного изменения. Если ссылочный документ отменен без замены, то положение, в котором дана ссылка на него, рекомендуется применять в части, не затрагивающей эту ссылку. Сведения о действии сводов правил целесообразно проверить в Федеральном информационном фонде стандартов.

3 Термины и определения

В настоящем стандарте применены следующие термины с соответствующими определениями:

3.1

пандус (рампа): Вспомогательное посадочное устройство, представляющее собой плоскость (обычно наклонную) между посадочной площадкой остановочного пункта и полом вагона, создающее возможность прохода (проезда) пассажиров-инвалидов в вагон. [Адаптировано из ГОСТ Р 51090-2017, пункт 3.1.11]

3.2

вспомогательные средства для ходьбы: Вспомогательные средства для ходьбы, управляемые одной рукой, код 12 03 по ГОСТ Р ИСО 9999, и управляемые обеими руками, код 12 06 по ГОСТ Р ИСО 9999.[Адаптировано из ГОСТ Р 51090-2017, пункт 3.1.14]

3.3

пассажир-инвалид: Человек с ограничениями жизнедеятельности (инвалид) по ГОСТ Р ИСО 9999, которому не противопоказано пользоваться общественным транспортом, в том числе лица с нарушениями опорно-двигательных функций (передвигающиеся в креслах-колясках, на протезах, костылях, ходунках и т.п., а также с сердечной и респираторной недостаточностью, с нарушением слуха и зрения.[Адаптировано из ГОСТ Р 51090-2017, пункт 3.1.3]

3.4 пассажирский салон: Внутренняя часть вагона трамвайного, используемая для размещения пассажиров.

3.5 подъемное устройство: Устройство или система с платформой, которая для обеспечения доступа пассажиров может подниматься и опускаться между полом пассажирского салона и посадочной площадкой остановочного пункта.

3.6 пассажирская (служебная) дверь: Дверь, предназначенная для входа и выхода пассажиров при обычной эксплуатации.

3.7 вагон трамвайный: Рельсовое транспортное средство с допустимой осевой нагрузкой не более 10 тонн, приводимое в движение электродвигателем(ями), питание которого обеспечивается от внешней подвесной контактной сети.

3.8 уровень головки рельса; УГР: Уровень головки рельса определяется как горизонтальная плоскость, касательная к верху головки рельса.

4 Общие технические требования

4.1 Конструкция вагонов должна обеспечивать беспрепятственный доступ в пассажирский салон и безопасную поездку в нем инвалидов, передвигающихся самостоятельно или с сопровождающим лицом.

4.2 Вагоны должны оборудоваться площадками для размещения инвалидов в креслах-колясках, местом для собаки-проводника, пассажирскими сиденьями для инвалидов, не пользующихся креслами-колясками, устройствами для их входа и выхода, сигнальными приспособлениями, средствами связи с водителем и информации.

4.3 Конструкция вагонов должна обеспечивать возможность посадки (высадки) инвалидов с типовых посадочных площадок в соответствии с СП 98.13330.2018.

5 Требования к местам для размещения инвалидов в креслах-колясках в пассажирском салоне

5.1 Планировка пассажирского салона должна предусматривать наличие площадки для размещения инвалидов в креслах-колясках по ГОСТ Р 50602 и пространство, необходимое для подъезда инвалидов в креслах-колясках к этой площадке в соответствии с требованиями ГОСТ Р ИСО 7176-5.

5.2 Площадка для размещения инвалидов в креслах-колясках должна быть шириной не менее 900 мм и длиной не менее 1250 мм (см. рисунок 1 приложения А).

5.3 Продольная плоскость площадки должна быть параллельна продольной плоскости вагона. В случае размещения инвалидных колясок по направлению движения верх спинок впереди стоящих сидений может выступать в эту зону для инвалидных колясок, если предусмотрено свободное пространство, как показано на рисунке 2 приложения А.

5.4 Пол площадки должен иметь нескользкую поверхность, а максимальный уклон в любом направлении не должен превышать 5%. В случае установки инвалидной коляски против направления движения уклон в продольном направлении не должен превышать 8% при том условии, что этот уклон направлен вверх от передней к задней части вагона. В случае размещения инвалидных колясок по направлению движения верх спинок впереди стоящих сидений может выступать в эту площадку, если предусмотрено свободное пространство.

5.5 По крайней мере одна служебная дверь должна обеспечивать доступ инвалидных колясок. Дверь для доступа инвалидной коляски должна быть оснащена посадочным устройством, подъемником или пандусом (рампой).

Пандус перекатной с безопасными бортиками, 50х900х700мм 10117-1
Перекатной пандус 700х900мм Артикул: 10117-1 Размеры: 50x900x700 мм Производитель в России: ООО «Вертикаль» Скачать тех. задание

5.6 Минимальная высота двери, предназначенной для доступа инвалидных колясок, должна составлять 1400 мм; минимальная ширина этой двери должна составлять 900 мм.

5.7 Пространство, необходимое для подъезда инвалидов в кресле-коляске от двери к площадке для размещения инвалидов в креслах-колясках должно предусматривать свободную площадь, в которую вписывается часть круга диаметром не менее 1300 мм в соответствии с ГОСТ Р ИСО 7176-5. В пространстве, необходимом для подъезда инвалидов в кресле-коляске к площадке для размещения должны отсутствовать ступеньки, проемы или стойки, которые могли бы помешать свободному перемещению пользователя инвалидной коляской, не должно быть уклонов более 6% в соответствии с ГОСТ Р 51090.

5.8 Каждая площадка для инвалидных колясок должна быть оборудована удерживающей системой, препятствующей самопроизвольному перемещению заторможенных колясок в продольном направлении или их опрокидыванию при разгоне и торможении вагона и способной удерживать инвалидную коляску и пользователя инвалидной коляской, или площадка для инвалидных колясок должна быть спроектирована таким образом, чтобы пользователь инвалидной коляской без удерживающей системы мог перемещаться в обращенной назад коляске с опорой на перегородку или опорную панель, в соответствии со следующими предписаниями:

  • поручень или опору для рук прикрепляют к боковой стороне или стенке вагона либо к разделительной перегородке таким образом, чтобы пользователь инвалидной коляской мог легко за них ухватиться. Такой поручень не должен заступать в пространство над вертикальной проекцией зоны для инвалидных колясок более чем на 90 мм, причем только на высоте не менее 850 мм и не более 1000 мм от поверхности пола зоны для инвалидных колясок;
  • с противоположной стороны зоны для инвалидных колясок устанавливают убирающийся поручень или любое другое эквивалентное жесткое устройство, с тем чтобы ограничить любое поперечное смещение инвалидной коляски и позволить ее пользователю легко за них ухватиться.

5.9 Удерживающая система и ее крепления должны быть сконструированы таким образом, чтобы выдерживать усилия, эквивалентные тем, которые предписаны для пассажирских сидений и удерживающих систем для пассажиров.

Узлы крепления кресел-колясок должны быть красного цвета. Любая удерживающая система, установленная на площадке для инвалидных колясок, должна легко разблокироваться в случае аварийной ситуации. Инструкции по эксплуатации удерживающей системы должны находиться в хорошо видимом месте рядом с местом ее установки.

5.10 При размещении инвалидных колясок против направления движения без удерживающей системы рядом с площадкой для инвалидных колясок наносят знак со следующей надписью: "Место для инвалидной коляски. Инвалидная коляска должна устанавливаться против направления движения с опорой на перегородку или опорную панель в застопоренном положении".

5.11 Нижний край опорной панели должен находиться на высоте не менее 350 мм и не более 480 мм, измеренной вертикально от пола зоны для инвалидных колясок. Верхний край опорной панели должен находиться на высоте не менее 1300 мм, измеренной вертикально от пола площадки для инвалидных колясок.

5.12 Опорная панель должна иметь ширину не менее 270 мм и не более 420 мм до высоты в 830мм от пола площадки для инвалидных колясок, и не менее 270 мм и не более 300 мм на высоте более 830 мм, измеренной от пола площадки для инвалидных колясок.

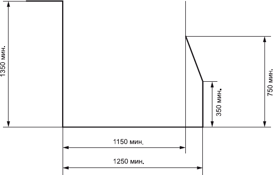
5.13 Опорную панель устанавливают под углом не менее 4° и не более 8° по отношению к вертикали, причем нижний край опорной панели должен располагаться ближе к задней части вагона, чем верхний край. Смягченная поверхность опорной панели должна проходить через любую точку воображаемой вертикальной плоскости, расположенной сзади от передней границы зоны для инвалидных колясок и на расстоянии не менее 100 мм и не более 120 мм от передней границы зоны для инвалидных колясок, измеренном по горизонтали, и на высоте не менее 830 мм и не более 870 мм от пола площадки для инвалидных колясок, как указано на рисунке 3 приложения А.

5.14 Зона размещения инвалидов в креслах-колясках может быть оборудована откидными пассажирскими сиденьями, которые могут быть использованы обычными пассажирами в тех случаях, когда инвалиды в креслах-колясках не занимают эту зону. Такие сиденья в убранном положении не должны попадать в площадку для размещения инвалидов в креслах-колясках.

5.15 В зоне размещения инвалидов в креслах-колясках в вагоне должно быть предусмотрено сигнальное устройство "Выхожу на следующей остановке". Устройства сигнализации должны иметь органы управления (кнопки) контактного типа площадью не менее 1600 мм и контрастной окраски. Устройства связи с водителем размещают в пределах площадки, предназначенной для инвалидных колясок, на высоте 1000-1200 мм над полом. Органы управления (кнопки) устройств связи также должны быть смонтированы на всех вертикальных поручнях на пути следования инвалидов от зоны размещения до двери на высоте 1000-1200 мм от пола вагона.

Технические средства связи и информации, доступные для инвалидов, должны соответствовать ГОСТ Р 51671.

5.16 Размещение инвалидов в креслах-колясках в пассажирском салоне не должно препятствовать входу и выходу других пассажиров. Размеры аварийных выходов вагонов должны обеспечивать эвакуацию кресла-коляски в сложенном виде с габаритными размерами 350 на 1100 мм.

6 Требования к местам для инвалидов, не пользующихся креслами-колясками

6.1 Сиденья для инвалидов, не пользующихся креслами-колясками, должны быть обращены либо вперед, либо назад по направлению движения, размещаться вблизи служебной(ых) двери (дверей), предназначенной(ых) для посадки и высадки. На сиденьях должны устанавливаться подлокотники. Подлокотники сидений, расположенные со стороны посадки инвалида, должны быть откидными. Минимальная ширина подушки сиденья должна быть 440 мм. Высота несжатой подушки сиденья по отношению к полу не менее 500 мм. В продольном направлении между двумя последовательно расположенными соседними сиденьями, предназначенными для инвалидов, должно быть расстояние не менее 700 мм.

Свободная высота над каждым сиденьем для инвалидов, измеренная от наивысшей точки несжатой подушки сиденья, должна составлять не менее 1300 мм. В зоне досягаемости от сиденья, предназначенного для инвалидов, должны быть предусмотрены крепления красного цвета для вспомогательных средств для ходьбы.

6.2 По крайней мере под одним местом для инвалидов или поблизости от него должно быть предусмотрено достаточное пространство не менее 1500 на 700 мм для собаки-проводника. Это пространство не составляет часть основного прохода.

6.3 Между местами для инвалидов и не менее одной дверью, предназначенной для входа-выхода инвалидов, должен быть установлен горизонтальный поручень, расположенный на высоте (1000±100) мм от уровня пола. Прерывание поручня допускается в том месте, где необходимо обеспечить доступ к площадке для инвалидных колясок, основному или другому проходу. Любое прерывание поручня не должно составлять более 1050 мм и по крайней мере с одной стороны разрыва должен быть установлен вертикальный поручень.

6.4 Высота пассажирского салона в проходе от двери до места размещения инвалидов должна быть не менее 1900 мм в соответствии с ГОСТ Р 51090.

6.5 Высота над уровнем посадочной площадки первой ступеньки по крайней мере одной служебной двери не должна превышать 320 мм. Высота ступенек около двери для инвалидов, в проходе, обеспечивающем доступ, и в основном проходе не должна превышать 200 мм. Дверные проемы не должны иметь выступов высотой более 30 мм.

6.6 Устройства связи с водителем размещают поблизости от любого места для инвалидов на высоте 1000-1200 мм над полом, и на высоте 800-1500 мм над полом около служебных дверей. Если вагон оснащен посадочным устройством, то снаружи, поблизости от двери и на высоте 850-1300 мм от земли должно быть установлено устройство связи с водителем вагона. Это требование не применяется к двери, расположенной в поле прямой видимости водителя вагона. На устройстве связи должна быть нанесена надпись шрифтом Брайля в соответствии с ГОСТ Р 56832.

7 Требования к специальным устройствам

7.1 Дверные проемы, предназначенные для доступа инвалидных колясок, должны быть оборудованы посадочными устройствами (подъемными устройствами или аппарелью) для посадки и высадки инвалидов в креслах-колясках и инвалидов с нарушением опорно-двигательных функций.

7.2 Посадочные устройства могут иметь ручной и механический привод.

7.3 Посадочное устройство, находящееся в нерабочем (транспортном) положении, не должно препятствовать свободному входу и выходу пассажиров.

7.4 Габаритные размеры и требования к конструкции посадочных устройств в соответствии с ГОСТ Р 51090.

7.5 Должна быть обеспечена возможность приведения пандуса (рампы) в действие только при полной остановке транспортного средства. Наклон выдвинутого или откинутого на посадочную площадку высотой 150 мм от УГР пандуса не должен превышать 15%. Наклон выдвинутого или откинутого на поверхность земли, расположенной на высоте УГР, пандуса не должен превышать 36%. На пульте водителя вагона должна быть установлена визуальная сигнализация о положении вспомогательного посадочного устройства. При находящемся в рабочем состоянии посадочном устройстве должна быть обеспечена невозможность закрытия дверей и движения вагона. Снаружи края пандуса (рампы) должны быть закруглены с радиусом не менее 2,5 мм, а углы - с радиусом не менее 5 мм.

7.6 Вагоны должны быть оборудованы звуковой и визуальной информационными системами (табло, дисплей и др.) для обеспечения инвалидов и других пассажиров сообщениями о маршруте следования, об остановках и любой другой предупреждающей информацией.

система, оповещения, мгн, визуально, аккустическая, говорящая, слепые, глухие, инвалид, сурдоцентр, сурдо, текст, строка
Табло «СурдоЦентр WI-FI» Артикул: 51961 Размеры: 220x1400x70 мм Производитель в России: ООО «Вертикаль» Скачать тех. задание

7.7 Для обеспечения доступности для инвалидов по зрению вагоны должны быть оснащены оборудованием радиоинформирования и звукового ориентирования по ГОСТ Р 59431, обеспечивающим инвалидам по зрению удаленную идентификацию подходящего/подошедшего к остановке вагона, интерактивное взаимодействие с водителем вагона как при посадке, так и при выходе из вагона, и определения местоположения открытой входной двери при посадке, а для безопасного передвижения инвалидов по зрению внутри вагона - специальными напольными ориентирующими покрытиями.

8 Маркировка

8.1 Вагоны, оборудованные площадкой для размещения инвалидных колясок, должны иметь пиктограмму доступности, размещенную на кузове под лобовым стеклом внизу, с правой стороны от водителя. Знаки доступности вагона для инвалидов на кресле-коляске по ГОСТ Р 52131 должны размещаться на кузове справа от доступных для них входов. Одну из таких пиктограмм помещают внутри вагона вблизи каждой площадки для инвалидных колясок с указанием того, подлежит ли коляска размещению по направлению или против направления движения вагона.

Доступность всех категорий SP-1
СП-01 Пиктограмма тактильная Доступность всех категорий Артикул: 902-0-SP-1 Производитель в России: ООО «Вертикаль» Скачать тех. задание
A 02 Пиктограмма тактильная Кнопка вызова помощи Цена 292 руб.
A 02 Пиктограмма тактильная Кнопка вызова помощи Артикул: 902-0-A-02 Производитель в России: ООО «Вертикаль» Скачать тех. задание

8.2 Внутри вагона размещаются указатели мест для инвалидов, не пользующихся креслами-колясками.

9 Указания по эксплуатации

9.1 Указания по эксплуатации мест для инвалидов, посадочных устройств должны содержаться в руководстве по эксплуатации вагона.

Приложение А (обязательное)

Пояснительные схемы

Рисунок 1 - Размеры площадки для размещения инвалидов в креслах-колясках

Рисунок 2 - Минимальное свободное пространство для пользователя инвалидной коляской в зоне

размещения инвалидных колясок

Рисунок 3 - Установка опорной панели для инвалидной коляски, обращенной против направления движения.

УДК 656.2:006.354 ОКС 43.120
Ключевые слова: вагоны трамвайные, перевозка инвалидов, кресла-коляски, специальные устройства.